Ответ на сообщение Re: Вопрос архитектору - дизайнеру пользователя ASSeregin
Одна из двух явно ен годится.Какая и почему? Сказали "а", говорите "б".
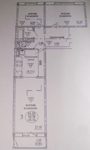
|
|
|
Ответ на сообщение Re: Вопрос архитектору - дизайнеру пользователя ASSeregin
Одна из двух явно ен годится.Какая и почему? Сказали "а", говорите "б".
Ответ на сообщение Re: Вопрос архитектору - дизайнеру пользователя Cosa_in_se
Ответ на сообщение Re: Вопрос архитектору - дизайнеру пользователя Lexmark
Ответ на сообщение Re: Вопрос архитектору - дизайнеру пользователя Lexmark

Ответ на сообщение Re: Вопрос архитектору - дизайнеру пользователя Buslaev
Ответ на сообщение Re: Вопрос архитектору - дизайнеру пользователя Lexmark
Ответ на сообщение Re: Вопрос архитектору - дизайнеру пользователя Lexmark
Ответ на сообщение Re: Вопрос архитектору - дизайнеру пользователя corco
Ответ на сообщение Re: Вопрос архитектору - дизайнеру пользователя senya82
Ответ на сообщение Re: Вопрос архитектору - дизайнеру пользователя artt
Можете перенести, но это будет перепланировка.то есть не какие нормы нарушены не будут и согласуют без проблем?
Поэтому надо будет вызывать БТИ , составлять план перепланировки и т.д..
Ответ на сообщение Re: Вопрос архитектору - дизайнеру пользователя senya82
Ответ на сообщение Re: Вопрос архитектору - дизайнеру пользователя Buslaev
Ответ на сообщение Re: Вопрос архитектору - дизайнеру пользователя senya82
Ответ на сообщение Re: Вопрос архитектору - дизайнеру пользователя artt
Ответ на сообщение Re: Вопрос архитектору - дизайнеру пользователя senya82
Ответ на сообщение Вопрос архитектору - дизайнеру пользователя Buslaev
23 дом
Ответ на сообщение Re: Вопрос архитектору - дизайнеру пользователя usw
Ответ на сообщение Re: Вопрос архитектору - дизайнеру пользователя Buslaev
23 дом
Ответ на сообщение Re: Вопрос архитектору - дизайнеру пользователя usw
Ответ на сообщение Re: Вопрос архитектору - дизайнеру пользователя usw
Ответ на сообщение Вопрос архитектору - дизайнеру пользователя Buslaev

).Мечты сбудутся, главное мечтать...
Исправлено пользователем princesso4ka (26.02.13 13:14)
Ответ на сообщение Вопрос архитектору - дизайнеру пользователя Buslaev
Мечты сбудутся, главное мечтать...
Ответ на сообщение Вопрос архитектору - дизайнеру пользователя Buslaev
Мечты сбудутся, главное мечтать...
Ответ на сообщение Re: Вопрос архитектору - дизайнеру пользователя princesso4ka
Ответ на сообщение Re: Вопрос архитектору - дизайнеру пользователя princesso4ka
Ответ на сообщение Вопрос архитектору - дизайнеру пользователя Buslaev
Ответ на сообщение Re: Вопрос архитектору - дизайнеру пользователя Ясное солнышко
Ответ на сообщение Вопрос архитектору - дизайнеру пользователя Buslaev
Творю и вытворяю
Ответ на сообщение Re: Вопрос архитектору - дизайнеру пользователя Shara

Ответ на сообщение Re: Вопрос архитектору - дизайнеру пользователя Buslaev
Тут правильно было бы уточнить - а почему именно ТЕМНЫЙ фон?а потому что прочитала про то что "светлый не осветляет, а осветляет и расширяет контраст темной стены и светлой мебели" )))) в общем слышу звон но не знаю откуда он )))
Творю и вытворяю
Исправлено пользователем Shara (28.03.13 20:29)
Ответ на сообщение Вопрос архитектору - дизайнеру пользователя Shara

Ответ на сообщение Вопрос архитектору - дизайнеру пользователя Shara
( и с белым цветом тоже, не стоит его бояться!)) может что-то Вас вдохновит-)Ответ на сообщение Re: Вопрос архитектору - дизайнеру пользователя Buslaev
Творю и вытворяю
Ответ на сообщение Re: Вопрос архитектору - дизайнеру пользователя Carroll
Ответ на сообщение Re: Вопрос архитектору - дизайнеру пользователя Carroll
Творю и вытворяю
Ответ на сообщение Re: Вопрос архитектору - дизайнеру пользователя Carroll
Ответ на сообщение Re: Вопрос архитектору - дизайнеру пользователя Carroll

Ответ на сообщение Re: Вопрос архитектору - дизайнеру пользователя Shara
хе! стеклянный....со светодиодами....хе!!! а не подскажите где же такое чудо можно заказать в славном городе Новосибирске?По адресу ул.Станиславского 27а можно заказать и обработать стекло ,а так же крепёжные отверстия и под розетки ,а светодиодную ленту можно приобрести на той же Толмачевке или в Медведице например.Дерзайте и у Вас обязательно получится!
Ответ на сообщение Re: Вопрос архитектору - дизайнеру пользователя fennel70
Творю и вытворяю
Ответ на сообщение Re: Вопрос архитектору - дизайнеру пользователя Shara
Ответ на сообщение Re: Вопрос архитектору - дизайнеру пользователя Buslaev
Также можно заказать все целиком в компании "Артель".А цена вопроса в "Артели"? И на мой взгляд со стеклом помароковать можно ,если художественный талант и, или чуть чуть пофантазировать.С камнем же это не так просто и опять же цена вопроса?
Либо можно сделать фартук не из стекла, но из искусственного камня с подсветкой.

Ответ на сообщение Вопрос архитектору - дизайнеру пользователя Buslaev
Ответ на сообщение Re: Вопрос архитектору - дизайнеру пользователя fennel70
Ответ на сообщение Re: Вопрос архитектору - дизайнеру пользователя лола3
Ответ на сообщение Re: Вопрос архитектору - дизайнеру пользователя Buslaev
Ответ на сообщение Re: Вопрос архитектору - дизайнеру пользователя лола3
Ответ на сообщение Re: Вопрос архитектору - дизайнеру пользователя Buslaev
Ответ на сообщение Re: Вопрос архитектору - дизайнеру пользователя Carroll
Ответ на сообщение Вопрос архитектору - дизайнеру пользователя Buslaev
В Сети свой образ создаешь словами
Ответ на сообщение Re: Вопрос архитектору - дизайнеру пользователя Lipa17