Ответ на сообщение Вопрос архитектору - дизайнеру пользователя Buslaev
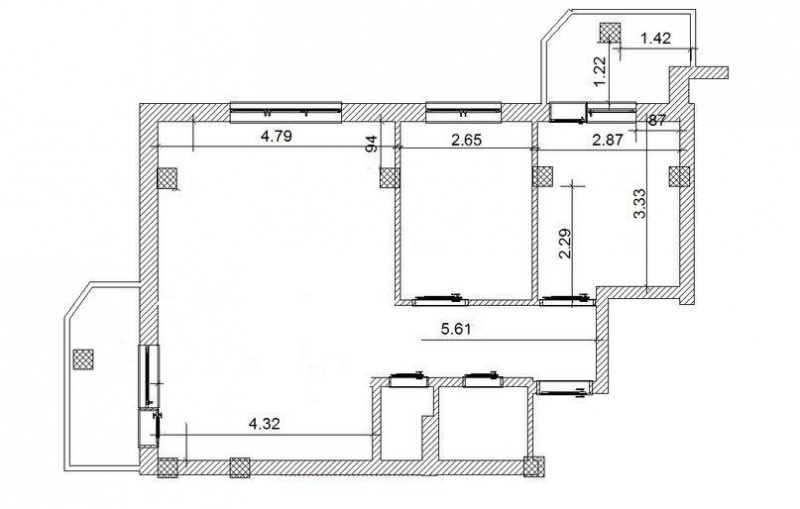
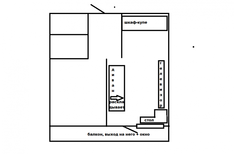
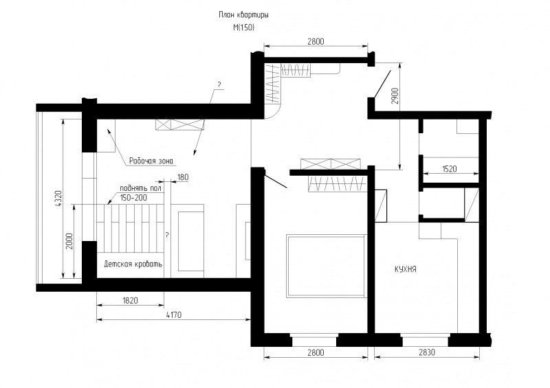
Недавно переехал в новую квартиру, дочке уже почти год и мы с женой стали задумываться об небольшой перепланировке гостиной. Туда бы хотелось уместить детскую зону для ребенка до пяти лет (в будущем планируем переехать), небольшую зону отдыха (с ТВ и диванчиком), рабочую зону (стол, стул комп) и вот что получилось см. ниже. В детской зоне я планирую поднять пол на 15-20 см, сделать его деревянным. но меня гложат сомнения и вопросы:
1) Какой высоты и из чего сделать перегородку между детской зоной и зоной отдыха (деревянная конструкция мимо, на ум приходят что то каменно кирпичное узкое до 200мм высотой 1200мм, армированное, а поверх деревянная или из камня столешница)?
2) Комната очень темная, строго на север выходят окна (без дополнительного освещения не обойтись -с этим понятно) правильно(логично) ли я расположил зоны есть еще варианты?
3) Поправьте если что не так цветовая гамма данной комнаты: светлые(белые, топленое молоко, сливочный) темный пол, темная стена напротив окна - ццель увеличить комнату и сделать ее более светлой?
инжинегр













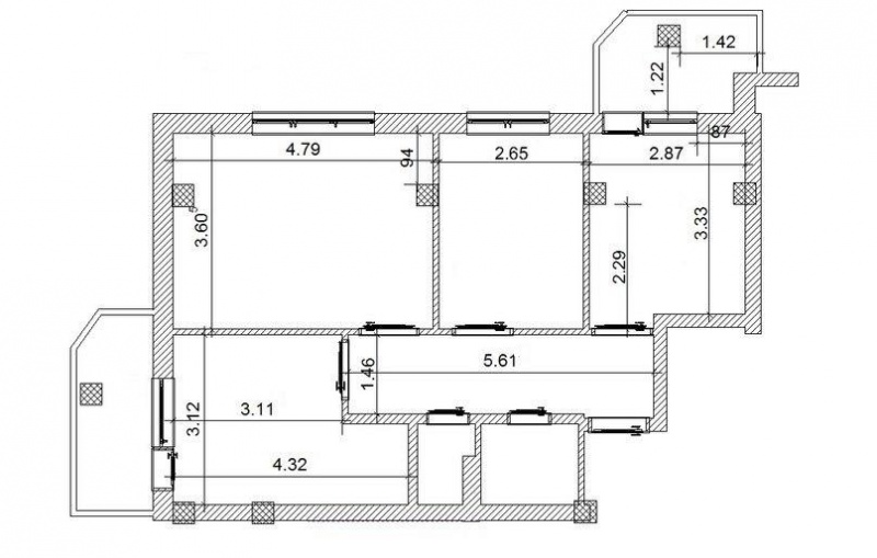
извиняюсь, каракулям и без точных размеров невозможно. Поэтому совет довольно абстрактный.












