Ответ на сообщение Re: Sip панели пользователя КОЛО
Дома из SIP-панелей.
Исправлено пользователем SANDR54 (03.05.12 00:15)
|
|
|
Ответ на сообщение Re: Sip панели пользователя КОЛО
Дома из SIP-панелей.
Исправлено пользователем SANDR54 (03.05.12 00:15)
Ответ на сообщение Sip панели пользователя SANDR54
Ответ на сообщение Re: Sip панели пользователя КОЛО
Дома из SIP-панелей.
Ответ на сообщение Re: Sip панели пользователя SANDR54
Получите сообщениие!И мне вышлите, хочу дачный домик сделать по этой технологии.
ВАЗ-2112/NISSAN PRIMERA/DODGE CALIBER/KIA RIO/ LEXUS GX470
Ответ на сообщение Re: Sip панели пользователя ProPheSy
Ответ на сообщение Re: Sip панели пользователя SANDR54
Ответ на сообщение Re: Sip панели пользователя SANDR54
Я сильный! Я гордый! Я рожден природой! Я лесной зверюга…
Hoodwinked (c)
Ответ на сообщение Re: Sip панели пользователя Lion76
Ответ на сообщение Re: Sip панели пользователя SANDR54
В данной конструкции вес дома значительно меньше почти любого аналога, поэтому для обеспечения несущей способности фундамента хватило-бы и 9 свай на весь дом. Но в этом случае значительно увеличиваются вибрации при эксплуатации пола из-за увеличившихся пролетов между сваями. Т.е., вопрос скорее комфорта, чем прочности конструкции. Гораздо более комфортен в этом плане ленточный фундамент.комбинированный фундамент с бурозаливными сваями и ленточкой в землю 300мм, самый оптимальный и качественный фундамент
Ответ на сообщение Re: Sip панели пользователя Drizo
.Ответ на сообщение Sip панели пользователя Dr.Loh
Ответ на сообщение Re: Sip панели пользователя ProPheSy
А что выслать? Давайте планировку или электронный адрес в личку, тогда будет понятно, что высылать.Получите сообщениие!И мне вышлите, хочу дачный домик сделать по этой технологии.
Дома из SIP-панелей.
Ответ на сообщение Re: Sip панели пользователя Zemlyanin333
вопрос к sandr хотел спросить как дом ваш и который строите переживает порывы ветра которые сегодня дуют?не качается?Панели было сложновато ставить, но несущие стены первого этажа сегодня смонтированы. Не качаются.
Дома из SIP-панелей.
Ответ на сообщение Re: Sip панели пользователя КОЛО
Я за фундамент, вообщето, не говорил.Это стены ставятся на пол (типа, плита из панелей) и связываются через пол с фундаментным брусом глухарями 12х300 с усиленной шайбой. Т.е., в какой-то мере стену можно рассматривать как ферму. Конечно, за исключением дверного проема.
Я говорил - за подоконные зоны стеновой панели и опирание на них, а не на простенки.
Стеновая панель висит на подоконной зоне, а средняя свая, та что под проемом, из работы выключена.
Пол, насколько я понмаю, достсточно просто цепляется за стеновые панели и пролет меж свай ему становится фиолетовым....
Дома из SIP-панелей.
Ответ на сообщение Re: Sip панели пользователя Lion76
Фото зачет.1. Брус 150*150.![]()
Вопросы:
1. Брус обвязки: какое сечение?
2. Расстояние между сваями какое?
3. Очень хотелось бы посмотреть сопряжение панелей перекрытия. Там тоже две доски по 50х150 ?
Дома из SIP-панелей.
Ответ на сообщение Re: Sip панели пользователя Drizo
комбинированный фундамент с бурозаливными сваями и ленточкой в землю 300мм, самый оптимальный и качественный фундамент"Внимание! Распространенная ошибка Общение с застройщиками показывает, что иногда возникает желание совместить столбчатый фундамент, возведенный с применением фундаментного бура ТИСЭ–Ф, с мелкозаглубленным.
Ответ на сообщение Re: Sip панели пользователя SANDR54
И я не понял, Вы хотите, чтобы я Вам порекомендовал кого-нибудь грамотного по строительству домов из SIP-панелей кроме себя?Ну да, а то к вам уже на форуме очередь формируется года на два вперед....
Да и вообще хотелось бы узнать, кто качественно на этом рынке работает.Ответ на сообщение Re: Sip панели пользователя Александр_1978
http://innovida.com.ua/files/book/2-001.jpg интересно при таком стыке конструкция монтируется вообще без доски ?Похоже, без доски. Только в этой панели пенополистирол экструдированый, а это совсем другая цена. Да и отсутствие жесткой связи между двумя ограждающими листами OSB несколько смущает. Ну и перекрытие из таких можно делать, только если поверх несущих балок укладывать.
Дома из SIP-панелей.
Ответ на сообщение Re: Sip панели пользователя baendor
Большой очереди пока нет. Просто жалко времени на неконкретные расчеты тратить. Это все-же процесс достаточно трудоемкий. По общим вопросам можно информацию на форуме найти. А вот если есть уже конкретные наброски дома, участок в наличии и возможность финансирования, тогда пожалуйста. Но уже за рамками форума.И я не понял, Вы хотите, чтобы я Вам порекомендовал кого-нибудь грамотного по строительству домов из SIP-панелей кроме себя?Ну да, а то к вам уже на форуме очередь формируется года на два вперед....Да и вообще хотелось бы узнать, кто качественно на этом рынке работает.
Дома из SIP-панелей.
Ответ на сообщение Re: Sip панели пользователя SANDR54
Дома из SIP-панелей.
Ответ на сообщение Re: Sip панели пользователя SANDR54
стену можно рассматривать как ферму. Конечно, за исключением дверного проема.Дверной проем - тоже не исключение.
Ответ на сообщение Re: Sip панели пользователя КОЛО
Дома из SIP-панелей.
Ответ на сообщение Re: Sip панели пользователя Green_Hawk
А помимо личного мнения есть информация, ну там факты, иследования, теории, гипотезы ?Информация есть всегда...только ее искать нужно..)))![]()
Ответ на сообщение Re: Sip панели пользователя SANDR54
У меня очень мало принципов. Но те что есть я чту свято.
" Я не друг,не слуга,я-кот, хожу где вздумается,гуляю сам по себе "(с)
Ответ на сообщение Re: Sip панели пользователя Badger211
Дома из SIP-панелей.
Ответ на сообщение Re: Sip панели пользователя SANDR54
У меня очень мало принципов. Но те что есть я чту свято.
" Я не друг,не слуга,я-кот, хожу где вздумается,гуляю сам по себе "(с)
Ответ на сообщение Re: Sip панели пользователя Badger211
Дома из SIP-панелей.
Ответ на сообщение Re: Sip панели пользователя Badger211
монополист
Ответ на сообщение Re: Sip панели пользователя SANDR54
У меня очень мало принципов. Но те что есть я чту свято.
" Я не друг,не слуга,я-кот, хожу где вздумается,гуляю сам по себе "(с)
Ответ на сообщение Sip панели пользователя volia999
У меня очень мало принципов. Но те что есть я чту свято.
" Я не друг,не слуга,я-кот, хожу где вздумается,гуляю сам по себе "(с)
Ответ на сообщение Sip панели пользователя volia999
)Best Regards : Green Hawk
Исправлено пользователем Green_Hawk (04.05.12 08:36)
Ответ на сообщение Re: Sip панели пользователя SANDR54
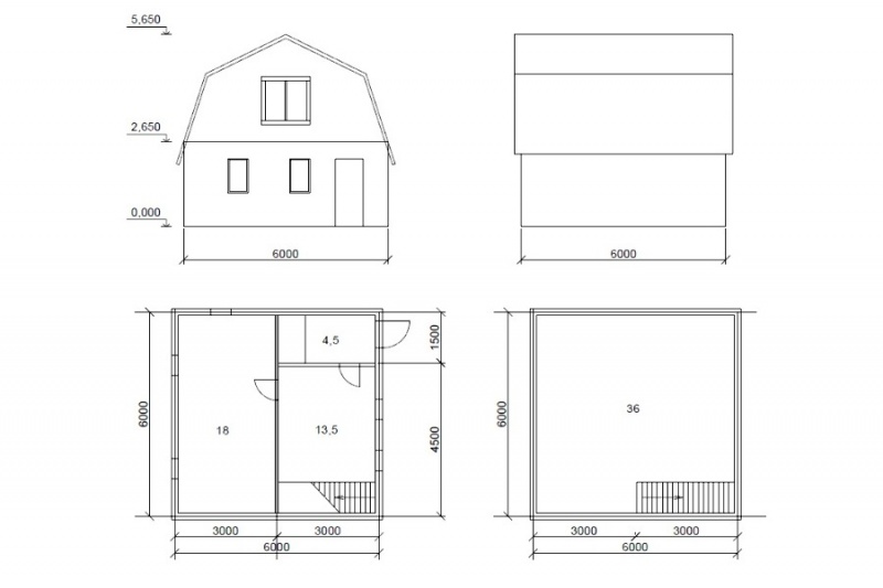
А что выслать? Давайте планировку или электронный адрес в личку, тогда будет понятно, что высылать.Упс...исправляюсь. Примерная планировка в приложенном файле. Есть еще несколько вопросов.
ВАЗ-2112/NISSAN PRIMERA/DODGE CALIBER/KIA RIO/ LEXUS GX470
Ответ на сообщение Re: Sip панели пользователя ProPheSy
Ответ на сообщение Sip панели пользователя Green_Hawk
Ответ на сообщение Sip панели пользователя Green_Hawk
Дома из SIP-панелей.
Ответ на сообщение Re: Sip панели пользователя ProPheSy
Вы, видимо, не внимательно читали ветку. Я занимаюсь строительством домов, а если Вам нужно купить домокомплект - это на завод. Там Вам все посчитают и расскажут. К домокомплекту идет комплект сборочных чертежей. Я бы не назвал это инструкцией по сборке, не шкаф все-таки.А что выслать? Давайте планировку или электронный адрес в личку, тогда будет понятно, что высылать.Упс...исправляюсь. Примерная планировка в приложенном файле. Есть еще несколько вопросов.
1. Приблизительная стоимость с доставкой и сборкой (в Бердск), интересует комплект без внутренней и внешней отделки.
2. Можно ли заказать домокомплект с доставкой, но без сборки.
3. Если пункт 1 возможен, то будет ли схема/инструкция по сборке?
Дома из SIP-панелей.
Ответ на сообщение Re: Sip панели пользователя Drizo
Best Regards : Green Hawk
Ответ на сообщение Re: Sip панели пользователя Green_Hawk
По моему домик из Сип - панелей собирается не сложнее шкафа... ;-)Я тоже так думал 5 лет назад, когда первый домик теще собирал

Дома из SIP-панелей.
Ответ на сообщение Re: Sip панели пользователя SANDR54
Ответ на сообщение Re: Sip панели пользователя SANDR54
Раньше деревянные столбы в землю вкапывали, досками с двух сторон, а внутрь шлак в качестве утеплителя. А потом подливали под столбы небольшую ленту без армирования.Никогда так не делали.

Я ничего не имею против столбов, если к ним подойти грамотно, имея данные по грунтам и т.п. Но лично я гарантировать заказчику отсутствие проблем с фундаментом не могу. Вот в винтовых и ленте, которую сам залил, я уверен.А вот и зря Вы так.
Исправлено пользователем КОЛО (04.05.12 10:52)
Ответ на сообщение Sip панели пользователя КОЛО
Ответ на сообщение Sip панели пользователя КОЛО
Ответ на сообщение Re: Sip панели пользователя Drizo
Ответ на сообщение Re: Sip панели пользователя КОЛО
Ответ на сообщение Re: Sip панели пользователя Drizo
У меня очень мало принципов. Но те что есть я чту свято.
" Я не друг,не слуга,я-кот, хожу где вздумается,гуляю сам по себе "(с)
Ответ на сообщение Re: Sip панели пользователя Drizo
Ответ на сообщение Re: Sip панели пользователя Badger211
Дома из SIP-панелей.
Ответ на сообщение Re: Sip панели пользователя Badger211
Да,столб вместе с работой обходится чуть больше тысячи.Несущая у него на контакте щебень-грунт от 5 тн.При тех же 20-ти столбах-100,что явно с большим запасом при имеющемся конструктиве дома.А какие параметры у ваших столбов? Сечение, глубина залегания?
Дома из SIP-панелей.
Ответ на сообщение Re: Sip панели пользователя SANDR54
У меня очень мало принципов. Но те что есть я чту свято.
" Я не друг,не слуга,я-кот, хожу где вздумается,гуляю сам по себе "(с)
Ответ на сообщение Re: Sip панели пользователя Badger211
Дома из SIP-панелей.