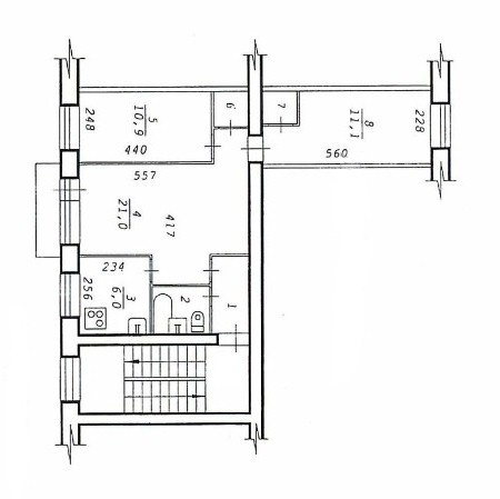
Вопрос: возможно ли так расширить ванную комнату за счёт коридора (и ванну поставить на месте бывшего коридора), узаконят ли это?
Ну и вообще, может есть у кого интересные мысли-примеры перепланировок таких скучноватых и не самых удобных квартир?
|
|
|
Ответ на сообщение Вопросы по перепланировке пользователя Borsa
Видулин Пётр Михайлович, гвардии лейтенант
командир взвода 120 мм миномётов минбатальона 12-й гв. мех. бригады 5-го гв. мех. корпуса 4-й гв. танковой армии 1-го Украинского фронта.
Ответ на сообщение Вопросы по перепланировке пользователя serega
Ответ на сообщение Re: Вопросы по перепланировке пользователя Borsa
Видулин Пётр Михайлович, гвардии лейтенант
командир взвода 120 мм миномётов минбатальона 12-й гв. мех. бригады 5-го гв. мех. корпуса 4-й гв. танковой армии 1-го Украинского фронта.
Ответ на сообщение Re: Вопросы по перепланировке пользователя serega

Ответ на сообщение Вопросы по перепланировке пользователя Borsa
Ответ на сообщение Re: Вопросы по перепланировке пользователя Ermolaeva2
Исправлено пользователем Borsa (13.08.12 21:49)