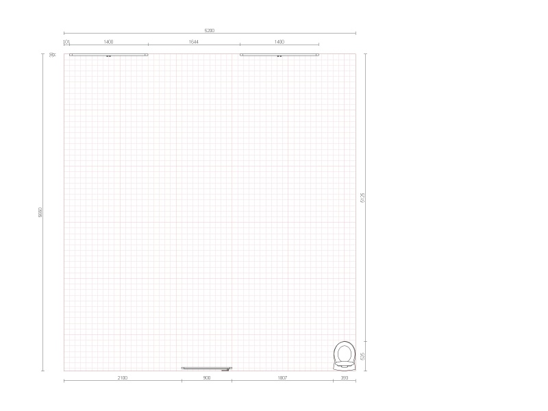
есть вот такая студия ( габариты указаны на картинки в приложении, естественно черновые..никакой отделки нет), хочется услышать просто советы или идеи обычных ..людей !!!! возможно тех, кто уже проживает в подобных квартирках... скажем , чтобы сделали..с учетом того, что уже пожили в такой маленькой и чего недостает
в общем-то, есть несколько вариантов планировки, но как всегда..хочется чего-то большего)) прикреплять наиболее приемлемый вариант на мой взгляд специально не стала, чтобы не смущать никакими ограничениями!!! ( могу позже выложить.)
-проблема высота потолков в черновом 2470мм. оочень низкие ( и в довесок это 2 этаж 3-х этажного кирпичного дома..хотя в округе только такие дома и сторона солнечная..но света по сути нет..)
- ванная комната может располагаться только по правую руку от двери при входе в кв, там все выводы, там стиральной машины не будет. однозначно...нужно расположить унитаз, пьедестал с раковиной и ванную/душевую не могу определиться
-из быт.техники варочная поверхность , стиральна я встраиваемая и микроволновка встраиваемая, холодильник встраиваемый под столешню,..духового шкафа не будет, такая кухня вполне вписывается в 1800мм. т.е. минимальная площадь..хотя моменты непринципиальные..когда проектировала исходила из своих потребностей и того, что она должна привлекать на себя минимум внимания, с минимальным кол-вом фасадов и ненавижу барные стойки..будет отдельностоящий нормальный стол, возможно трансформер который опускается до высоты журнального..благо есть разные по стилям..
-диван ..он же спальное место габариты любые( изначально планировалась отдельно стоящая кровать, но отказалась..не хочется, чтобы кв. была похожа на улей оставила только диван), можно рассмотреть вариант маленького дивана на каждый день и кресел..но я не нашла ничего подходящего в магазинах..либо убогие ..либо механизм раскладушка..а фантазии совместить изделия из разных наборов мне не хватает..может кто что подскажет
-шкафы-перегородки и т.д. в моем проекте выгорожена гардеробная комната 1800*1600, я посчитала, что это оптимальный размер, мне будет таких габаритов достаточно, чтобы и одежду разместить и возможно всякий хлам, не принципиально можно и шкафы если будет идея ( балкона нет,)
-предполагала камин в пролете между окнами, над ним на стене телевизор
-что касаемо отделки и декорирования.:
я люблю насыщенные цвета..темные..но уж не знаю..пространство небольшое..да еще потолки такие низкие..как лучше комбинировать что посоветуете ( .. с потолком тоже вопрос открытый..хотела матовый натяжной а по периметру гипсокартон со светильниками..если светлые стены то темное полотно..но опять же..не знаю..заморочка такая потомучто по сути декорирования никакого не будет.. шторы самые простые на ширину окна в любом случае..полок естественно никаких не будет..если только это не гипсокартоновые ниши..ковриков и всяких безделушек не будет..так что акценты надо расставить за счет текстур и цветов..
может кто посоветует как воплотить..нравится бархатная поверхность..видела в исполнении дек.штукатуркой..говорят оч сложная и дорогостоящая работа..может есть краски какие специальные с таким эффектом..или еще что?
- ну пол! не хочется разные материалы использовать. сначал думала с орг стеклом заморочиться и подсветкой ..но потом подумала..пол есть пол..либо керамогранит..либо ламинат.. . понятно что лучше укладывать по диагонали ..но что то мне подсказывает , что градус этот должен быть не 45..хочется..чтобы визуально правый .. угол уходил вдаль..как бы визуально неровно ( такой эффект как на площадях больших уложенных брусчаткой.) как можно достичь???если керамогранит то какого размера оптимальные плитки? ламинат нравится с фасками по дерево..но там плашки огромные и широкие..какой ламинат наиболее выйгрышно будет смотреться?
а тематика..не определена..сначал думала и про мультяшный такой вариант..типа "марио"..потом как-то к трансформерам стала склоняться.ю..потом стала думать о том..чтобы самолетную какю-то в общем техническую тему поддержать..чтобы освещение с низу ввверх..как на вз/п полосах..да и в мебели проще было бы..стол двери..двери гардеробной фартук стеклоблаго вариантов масса..потом думала про что то из алисы в стране чудес..типа белый деревянный пол..сние эллектрические стены розовые эмалированные двери..какие то каминные кресла и диван в плюше..и т.д.. в итоге вообще запуталась..нужно чначала определиться с окончательнйо планировкой и материалом..хотя бы одним..стены..там или пол..и от этого отталкиваться и думать над стилем
рекомендации по поводу того, что лучше обратиться к проф. дизайнерам не нужны..есть дизайнерский проект..решила им не пользоваться..( возможно, мне не повезло, согласовала от безысходности ..пересмотрела большое число портфолио так называемых проф-ов да и по роду своей деятельности общаюсь с этими товарищами..выбрала.итог:. сначала много времени потратили на то, чтобы человек врубился..что есть определенные тех условия , которые в данном бюджетном жилище просто не имеет никакого резона обходить..такие как например увеличить проем окна и приделать балкон или вывести коммуникации в место удаленное от того..где они первоначально располагаются..потом..долго не было понимания того, что не надо из этой кв делать ни кафе , ни парикмахерскую, ни просто картинку с интернета..в итоге выяснилось, что человек сам в объеме ничего не видит, понятно, что все пользуются идеями чьими то..но он и совместить в конкретных условиях и под конкретного человека не может..не понимает или наоборот очень сильно понимает в материалах и совместимости текстур, то есть вообще полный ноль..кроме того, что с граф. редакторами неплохо умеет работать..поняла пустая трата времени, закончили работу..)
заране благодарна..всем кто откликнется..
филолог жаба


, а лучше использовать натяжной глянцевый!

)))