Лучше жалеть о совершенных ошибках,
чем об упущенных возможностях!
|
|
|
Лучше жалеть о совершенных ошибках,
чем об упущенных возможностях!
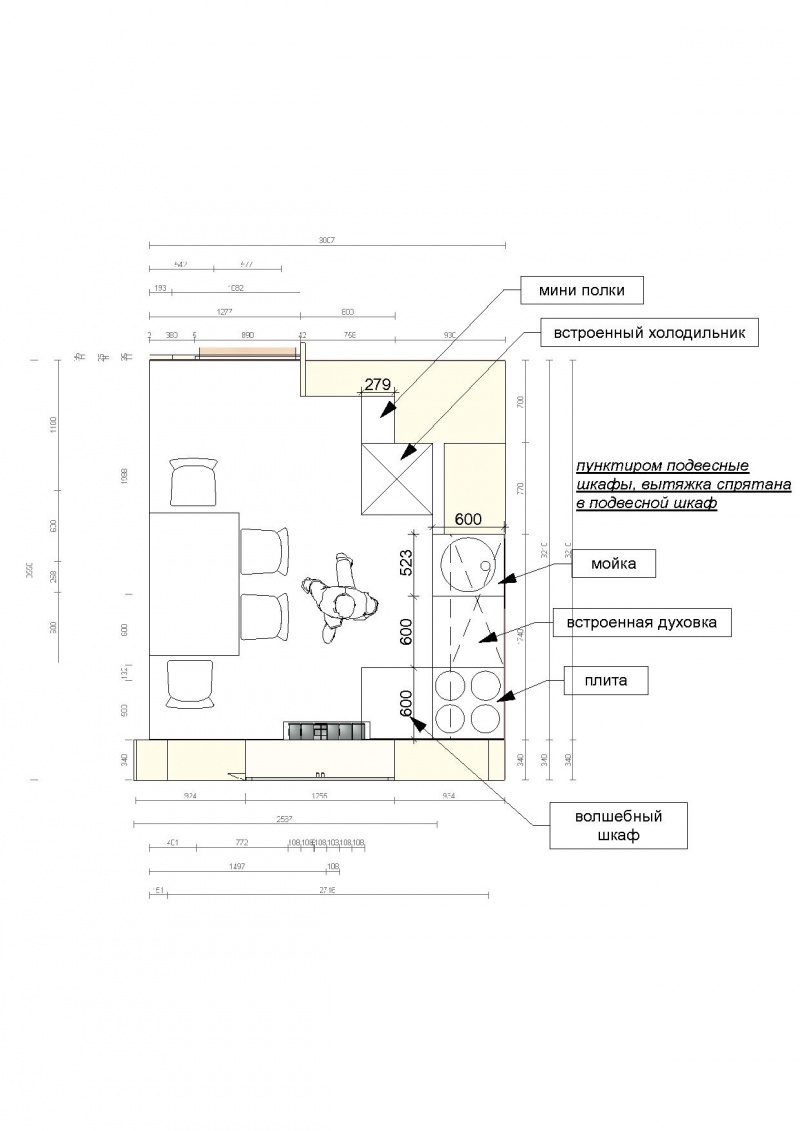
Ответ на сообщение Помогите с планировкой кухни пользователя crackjack
Ответ на сообщение Re: Помогите с планировкой кухни пользователя shish2010
Лучше жалеть о совершенных ошибках,
чем об упущенных возможностях!
Ответ на сообщение Re: Помогите с планировкой кухни пользователя shish2010
Ответ на сообщение Re: Помогите с планировкой кухни пользователя Ljaguha
Исправлено пользователем Котег (02.03.10 17:38)
Ответ на сообщение Re: Помогите с планировкой кухни пользователя Котег

Лучше жалеть о совершенных ошибках,
чем об упущенных возможностях!
Ответ на сообщение Re: Помогите с планировкой кухни пользователя crackjack
Лучше жалеть о совершенных ошибках,
чем об упущенных возможностях!
Ответ на сообщение Re: Помогите с планировкой кухни пользователя crackjack
Я всё знаю! Но практически ничего помню....
Ответ на сообщение Re: Помогите с планировкой кухни пользователя Дядя Ваsя
Лучше жалеть о совершенных ошибках,
чем об упущенных возможностях!
Ответ на сообщение Re: Помогите с планировкой кухни пользователя crackjack
Я всё знаю! Но практически ничего помню....
Ответ на сообщение Re: Помогите с планировкой кухни пользователя Дядя Ваsя
Лучше жалеть о совершенных ошибках,
чем об упущенных возможностях!
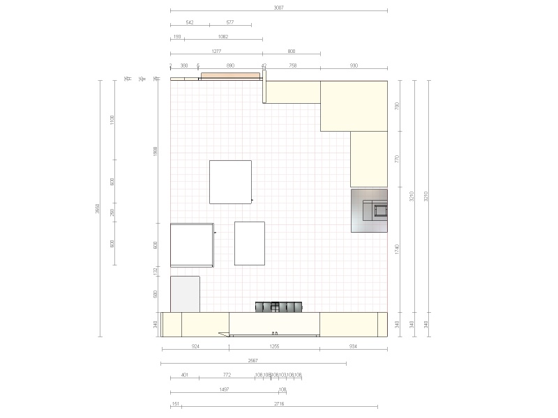
Исправлено пользователем crackjack (02.03.10 21:32)
Ответ на сообщение Re: Помогите с планировкой кухни пользователя crackjack
Я всё знаю! Но практически ничего помню....
Ответ на сообщение Re: Помогите с планировкой кухни пользователя Дядя Ваsя
Лучше жалеть о совершенных ошибках,
чем об упущенных возможностях!
Ответ на сообщение Re: Помогите с планировкой кухни пользователя crackjack
а "на ус" это как?На половину угла стыка.
Я всё знаю! Но практически ничего помню....
Ответ на сообщение Re: Помогите с планировкой кухни пользователя Дядя Ваsя
Лучше жалеть о совершенных ошибках,
чем об упущенных возможностях!
Ответ на сообщение Re: Помогите с планировкой кухни пользователя crackjack
Ответ на сообщение Re: Помогите с планировкой кухни пользователя shish2010
Лучше жалеть о совершенных ошибках,
чем об упущенных возможностях!
Ответ на сообщение Re: Помогите с планировкой кухни пользователя crackjack
Во-вторых, по поводу стиралки и морозилки.Я всё знаю! Но практически ничего помню....
Ответ на сообщение Re: Помогите с планировкой кухни пользователя Дядя Ваsя
Впрявыъ шкафахЧитать как "В прямых шкафах"

Я всё знаю! Но практически ничего помню....