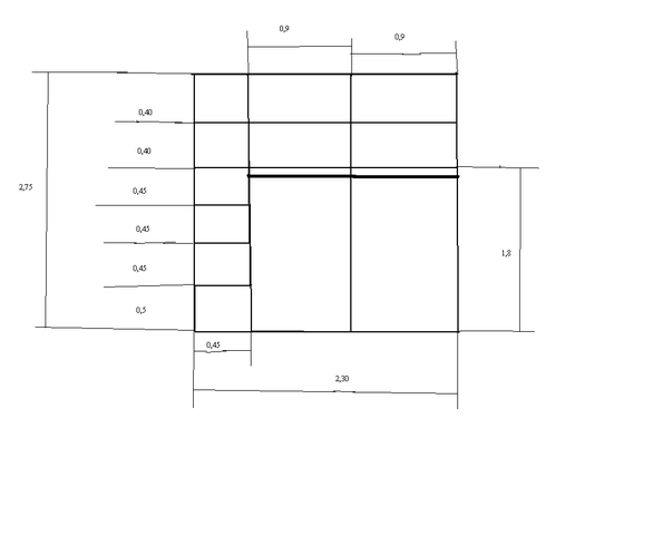
Шкаф будет вставать в проем комнаты, направляющие крепятся к полу и потолку.
4 двери - шириной 842мм каждая. Профиль - открытый аналог раум плюс.
Глубина шкафа 615мм (по наружным размерам).
Материал стоек и полочек - ЛДСП 16мм + сетчатые корзины.
Мысли и одновременно вопросы:
1) Так как планирую, что двери будут упираться не в стену, а в ЛДСП, то крайние стойки (1) и (5) будут иметь глубину (или по другому- ширину листа) 620мм, ну и высоту соответственно 2640мм.
2) Остальные стойки (2), (3) и (4) должны иметь ширину листа 520мм? Правильно ли я мыслю: ширина направляющей 80мм+ 20мм на свободное хождение внутренних дверей.
3) Стоит ли заглублять полочки по отношению к стойкам еще на 5-10мм или делать их вровень?
4) При моем соосном расположении полок, крепиться к стенкам они могут только пластиковыми уголками или есть еще какие варианты (конфирматы отпадают, использование эксцентриков не рассматриваю)?
5) Средние стойки 2,3,4 крепить к стене и потолку или не стоит, если крепить то чем, пласт. уголками?
6) Последовательность сборки:какие у меня могут возникнуть проблемы и какие есть хитрости?
Заранее спасибо за все дельные замечания и советы!



воды





) Но!!! Она только на левую боковину!
.








ФУУУХ!!!! Я уже испугался, что чета не предусмотрел....






Если же сделать невстроенный шкаф, то потолок получится какой надо (шкаф-то будет не до потолка), но прочная ли будет конструкция для работы трех огромных дверей?









