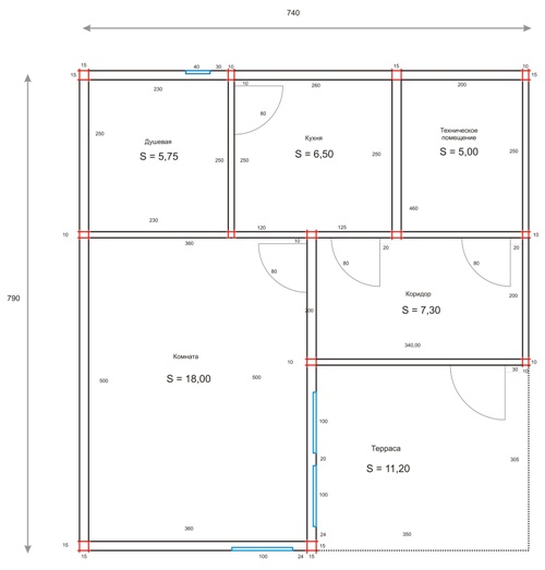
В этом году решили строиться на участке. С проектом дома пока определяемся, и как первоначальное строение решили возвести небольшую баню с возможностью проживания зимой. Баня предполагается как временное строение года на 2-3 (Т.Е. пока будет возводиться дом).
Сначала решили строить из бруса, но посмотрев некоторую инфу по проектам (искали по принципу чем дешевле, тем лучше
), нашли там проекты каркасных бань.В связи с этим встал вопрос по второму варианту, если кто-нибудь строил или тоже занимался данным вопросом, напишите пожалуйста, насколько каркасная технология пригодня именно для бани? чем обшивать и утеплять?


