Ситуация такая: строю дом из бруса 10.5 на 9.7 м в два этажа.
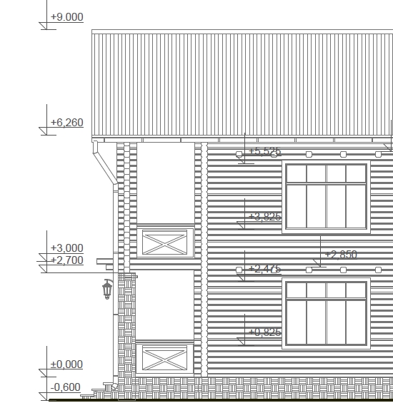
Фундамент - буронабивные сваи с железобетонным ростверком шириной 40см
По ростверку выложили кирпичный цоколь по всему периметру.
Опора балкона на втором этаже будут кирпичные столбы.
Получилось так что сначала хотел деревянные, потом передумал на кирпичные с арматурой. столбы по ширине цоколя в полтора кирпича - 380мм. и по два хляста арматуры в каждом. Но арматура идет не на всю длинну а только на полтора метра из цоколя (так почему то решили сделать строители
Теперь мне мастер говорит что нужны сварочные работы, чтобы сделать обвязку столбов по всей длинне металическим уголком с 4-мя поясами и сверху над каждым столбом приварить металлическую пластину на которую будет крепиться брус. и между столбами бросить два уголка на который лягут лаги.
Вопрос, зачем такая извращенная связка? целесообразно ли это или просто выкачка денег? При том что цену он мне назвал в 20000 за работы, когда несколько других сварщиков при описании работы назвали цены от 4 до 8 тыс рублей.
Фото приклепляю.

.
.
.


