Погода: −4 °C
14.12−5...−1пасмурно, небольшой снег
15.12−3...1пасмурно, небольшой снег
НГС.Форум /Дом Стройка Ремонт / Строим дом /

Посмотрите, кто понимает...

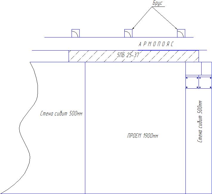
  • Скажите, возможна ли такая конструкция?

  • ничего не видно, как я понял брус лежит на сибите?

    — Павлины, говоришь... Хех!

  • Перемычки брусковые-замени на монолитные армированные.

    Принятие решения часто свидетельствует о том, что человек устал думать.

  • Сколько несут монолитные балки на второй картинке?

    Принятие решения часто свидетельствует о том, что человек устал думать.

  • Стены перпендикулярны друг к другу. В одной дверной проем, над ним перемычка ж/б 3700 кг/м2. На ней через ряд сибита такие же под углом 90 градусов. Далее армопояс ж/б, на нем пол 2-го этажа -- брус+доска.

    Т.е. на перемычку посередине опираются две перемычки.

  • Не так нарисовал немного. Перемычка - армопояс- брус- доска.

  • Креплю по-новому.

  • Тогда я не понимаю.
    Перемычки устанавливаются над дверными и оконными проёмами.
    Перпендикулярно одному проёму другой дверной проём?

    Принятие решения часто свидетельствует о том, что человек устал думать.

  • Справа дверь входная. Левее просто проход. Если совсем грубо, то на рис.

  • После 17-00 буду в безинтернетном пространстве (стройка), не теряйте если что.

  • Отлей по месту, проармировав четырмя нитями д. 12. И всё будет стоять.
    Мы уже давно пб не пользуем.

    Принятие решения часто свидетельствует о том, что человек устал думать.

  • Как бы считаю, что поставить перемычки краном быстрее, чем делать опалубку и заливать. К тому же залитая самостоятельно никогда не будет даже близко к заводской.

  • А пачиму?

    У меня очень мало принципов. Но те что есть я чту свято.
    " Я не друг,не слуга,я-кот, хожу где вздумается,гуляю сам по себе "(с)

  • Что почему? Про заливать?

  • А я не уверен, что спаренные пб-шки можно использовать в качестве балок.
    Ты же нагрузки не озвучиваешь.
    Если время поджимает, отлей заранее балки, на земле, применив закладные для подъёма краном.

    Принятие решения часто свидетельствует о том, что человек устал думать.

  • Непонимаю почему самопал лучше. В перемычке нет арматуры?

  • Нагрузка в смысле от 2-го этажа, крыши и снега?

    Нагрузка перемычки 3700кг/м2 по прайсу.

  • Пачиму" никогда не будет даже близко к заводской"(с)?

    У меня очень мало принципов. Но те что есть я чту свято.
    " Я не друг,не слуга,я-кот, хожу где вздумается,гуляю сам по себе "(с)

  • Ну там бетон какой надо замесют, повибрируют...... я надеюсь. Еще армопояс будет, он уменьшит нагрузку на перемычки.

  • А на площадке просто г...ом помажут?

    У меня очень мало принципов. Но те что есть я чту свято.
    " Я не друг,не слуга,я-кот, хожу где вздумается,гуляю сам по себе "(с)

  • Да, так оно и получится. Эта стройка и так развратные действия надо мной совершает, я еще буду ж/б балки лить в косой опалубке.

  • Тогда хотя бы перемычки плитные используй.

    Принятие решения часто свидетельствует о том, что человек устал думать.

  • Чем они лучше карандашей?

  • Более мощное армирование. Сплошное сечение.
    Там тебе вообще балка нужна, а я и так разрешаю попроще загавнякать( не зная нагрузок, не имея проекта под рукой.)
    Сказано лей по месту-значит лей и не препирайся со старшими.

    Принятие решения часто свидетельствует о том, что человек устал думать.

  • Оторви руки тем кто тебе строит,засунь им в ж.....и всем говори что так и было.Если такую элементарщину не могут сгавнякать-на холопский пожизненно

    У меня очень мало принципов. Но те что есть я чту свято.
    " Я не друг,не слуга,я-кот, хожу где вздумается,гуляю сам по себе "(с)

Записей на странице:

Перейти в форум

Модераторы: