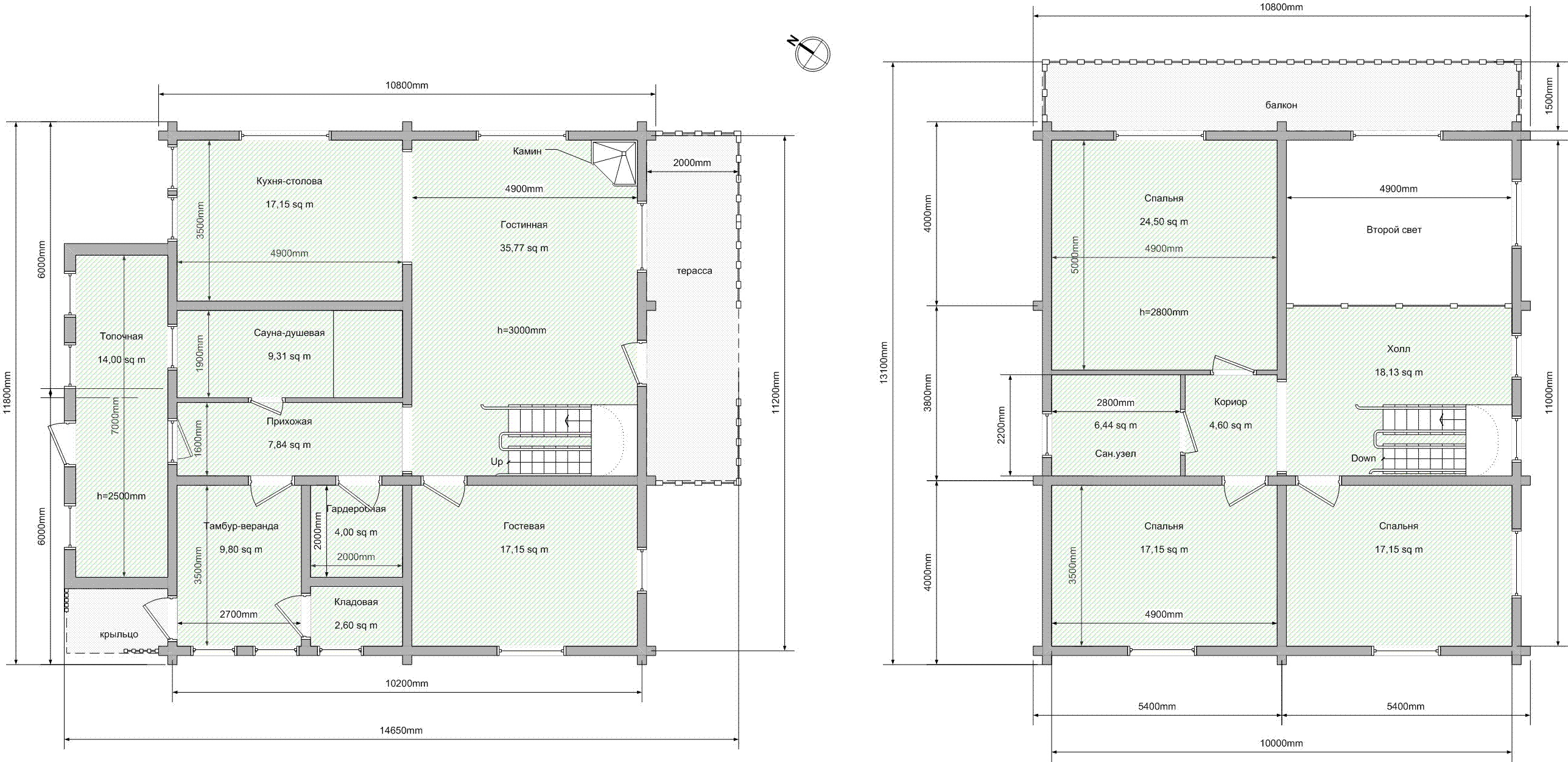
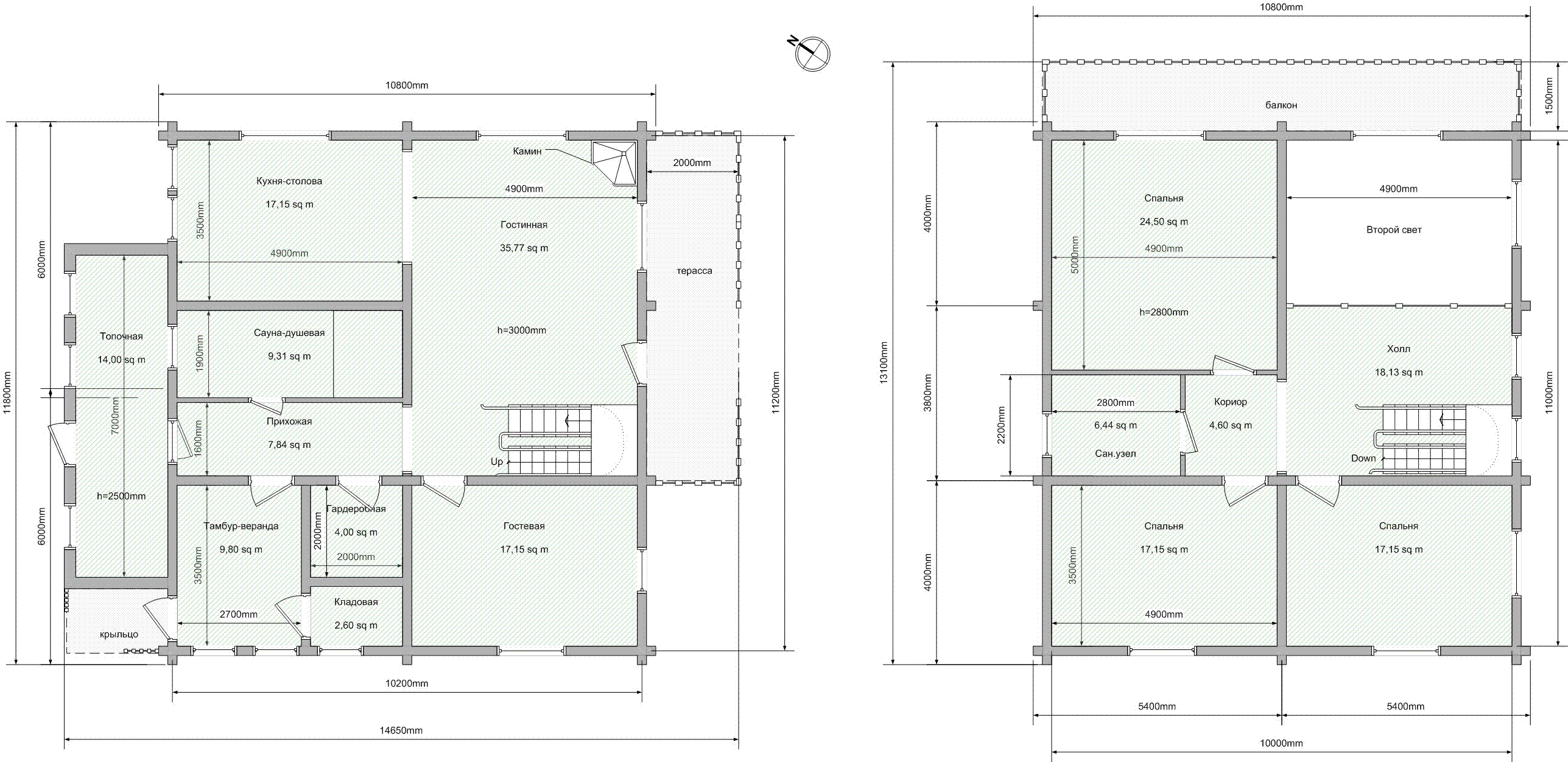
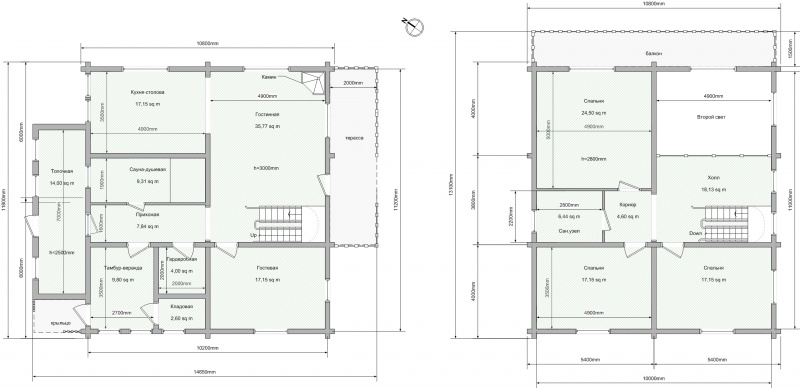
Ответ на сообщение Планировка дома обсуждение замечания. пользователя WestMan
Вот навоял свой вариант дома, вроде постарался учесть высказаные ранее здесь замечания, результат во вложении. Прошу знающих людей оценить плановку и дать конструктивные замечания и предложения. Дом преполагается строить из бруса.Жизнь не терпит суеты...


Дублирую
