Погода: −11 °C
13.12−8...−4пасмурно, небольшой снег
14.12−3...−2пасмурно, без осадков
НГС.Форум /Дом Стройка Ремонт / Строим дом /

нужны строители для бани

  • День добрый!
    Собрались на даче наконец то построить хорошую баню из бруса с большой верандой,естественно нужны грамотные строители,не фирмы,кот сдерут три ценника,а люди кот лично и качественно этим занимаются!
    Подскажите у кого имеются координаты таких?

    P.S. ДЕЛЬНЫЕ предложения и телефоны писать в личку

  • люди которые этим занимаются чаще всего уже организовали свои фирмы и занимаются этим профессионально, а таким образом вы найдете только дилетантов или которые клали баню пару раз...а это не серьезно...

    ____________________________
    http://znakomstva.ru/

  • Вы уясните разницу между фирмой и частником. Разница в ответственности. Это и сроки и качество работ. И безопасность эксплуатации. Я сам недавно построил баню, через фирму. Они комплектовали, строили, отделывали. Частникояв я бы нашел процентов на 20 дешевле. Но тогда сам бы контролировал этапы строительства. И никакой гарантии. Поэтому , если хотите красивое и надежное сооружение - ищите фирму. Мне стройком делал, на Станционной сидят. Могу рекомендовать - всем доволен.

    Трудно заставить человека понять что-либо, если его заработок обеспечивается непониманием этого" А. Смит

  • Да бред полный по поводу ответственности фирмы:улыб:. Продал фирму и нет никакой ответственности. У строительных организаций таких ООО-шек полный комплект, которые закрываются и открываются:улыб:. А строят им теже самые талибы....Куда не посмотришь, везде только они и работают. Либо от фирмы, либо сам заказчик контролирует. Здесь вопрос в том, если хочется дешевле, то нужно процесс стройки контролировать самому, а строить должны талибы. Если есть лишние деньги, то в фирму с их якобы договором, затрат больше, контроль ведут они, строят также талибы:улыб:.

    Никогда не рой яму другому. Используй ту, что он вырыл для тебя...

  • А вы проверьте ОООшку на срок жизни. Что мешает? Кроме того ответственность несут люди, с которыми договор. Есть репутация, она тоже денег стоит. Выбирайте проверенных и будет счастье. А ваши отговорки про самоконтроль и пр не выдерживают никакой критики Вы так хорошо разбираетесь в строительстве? Вы специалист? А ТС? Ваши рассуждения - это рассуждения теоретика, который сам ничего не построил.

    Трудно заставить человека понять что-либо, если его заработок обеспечивается непониманием этого" А. Смит

  • В ответ на: День добрый!
    Собрались на даче наконец то построить хорошую баню из бруса с большой верандой,естественно нужны грамотные строители,не фирмы,кот сдерут три ценника,а люди кот лично и качественно этим занимаются!
    Подскажите у кого имеются координаты таких?

    P.S. ДЕЛЬНЫЕ предложения и телефоны писать в личку
    Поддержу, тоже есть такая необходимость. Только надо произвести реконструкцию имеющейся бани с ее расширением. Предложений тоже буду ждать в личку.

  • ООО шка может существовать лет 10, и закрыться по каким-либо обстоятельствам:улыб: Ответственность несут люди - тоже иллюзия. Мы все прекрасно знаем, в какой стране мы живем :). По поводу того, что в любой фирме строят те же самые талибы - так оно и есть. Заедьте в любой коттеджный поселок, не одного русского лица вы не встретите))). По поводу теории, вы, сударь, крайне не правы, третий год имеем непосредственное отношение к стройке, строили и с фирмами, о чем крайне потом жалели, сейчас достраиваем себе дом и к стройке имеем непосредственное отношение. Есть с чем сравнивать. А ненавязчивую рекламу Стройкома я услышала:улыб:

    Никогда не рой яму другому. Используй ту, что он вырыл для тебя...

  • Надо через знакомых узнавать, кому и кто делал.. А фирма или частник неважно, везде такие же люди..

  • А можно по коттеджным поселкам поездить, посмотреть, кто и где что строит:улыб:Пообщаться....

    Никогда не рой яму другому. Используй ту, что он вырыл для тебя...

  • А мой опыт говорит ровно обратное. В октябре прошлого года я начал строительство нового дома. Баню чуть раньше начал. Стройном баню собрал из оцилиндровки за три недели. В этом году закончили отделку, уже эксплуатирую. Дом строит совсем другая организация, гораздо более серьезная- это все- таки не баня. В настоящще время дом в стадии окончания мокрых работ, к новому году въедем. Свой первый дом я строил сам, выводы сделал и пошел к профессионалам. Нисколько не жалею. Еще раз подчеркну, я в строительстве понимаю как продвинутый пользователь:улыб:и то, многие вещи для меня неожиданны. Вы уверены, что ТС разбирается в стройке? И вы уверены, что вам не придется что- то переделывать в своем доме после первой зимовки? Я все это прошел. Поэтому и совет даю такие. У вас еще все впереди:улыб:успехов в строительстве!

    Трудно заставить человека понять что-либо, если его заработок обеспечивается непониманием этого" А. Смит

  • А ваши-прям практикующего строителя :biggrin: Если такой грамотный,нахрена фирме лишнего платить?Однако заплатил......

    У меня очень мало принципов. Но те что есть я чту свято.
    " Я не друг,не слуга,я-кот, хожу где вздумается,гуляю сам по себе "(с)

  • Заплатил, потому что знаю сколько проблем вылезает при ином ходе событий. И представляю во что мне выльется исправление недостатков. Я еще и проект дома сделал перед началом стройки и тоже заплатил. И построил прямо по проекту. Я же говорю, опыт есть. Понимаю на чем можно экономить, а на чем нельзя.

    Трудно заставить человека понять что-либо, если его заработок обеспечивается непониманием этого" А. Смит

  • Кто в строительстве разбирается,у того проблем не возникает.Ивообще какие проблемы в принципе могли возникнуть при наличии проекта?Скажите честно,проще было отдать денег,чем взваливать на свою голову массу вопросов,в которых некомпетентен..При наличии достаточного количества денег,почему бы и нет.Но только ,как показывает практика,к сожалению строительство " от фирмы" мало чем,кроме ценника,отличается от строительсва хозспособом.

    У меня очень мало принципов. Но те что есть я чту свято.
    " Я не друг,не слуга,я-кот, хожу где вздумается,гуляю сам по себе "(с)

  • Продвинутый пользователь-это как?И эту квалификацию вы получили при строительстве первого дома?Прикидываю,чтож за дом получился.Продали надеюсь,удачно?

    У меня очень мало принципов. Но те что есть я чту свято.
    " Я не друг,не слуга,я-кот, хожу где вздумается,гуляю сам по себе "(с)

  • Итог таков!Поехали в ОЧЕНЬКРУТУЮ фирму,типа 16 лет на рынке,репутация там гарантия бла-бла-бла все дела.....Насчитали нам 538т.р. это с учетом того это мы не делаем,сливной пол не строим,тут крышу сами,доставка не входит и т.д. и т.п. Потом поехали через друзей,дали телефон, к человеку,кот строил им.Посмотрели визуально его работу качество понравилось более чем,пообщались осталось хорошее впечатление,человек со знанием дела,перешли к ценнику получилось 412т.р. со всеми пирогами от и до!!!
    Так что всем спасибо за обсуждение,стройка начинается....

  • Ну так я и говорю, что не профессионал и заморачиваться не хочу. Мне сделали классно. К слову о ценах . Мне построили баню из оцилиндровки 200 размер 5*6 отдельно мойка парилка и комната отдыха. Работа вместе с материалами без отделки м( ее я делал уже эти летом) с фундаментом, транспортом и пр потянула на 460 тыр подчеркну я сам ничего не делал, только место показал и розетку дал. Платил безналом, официально. Ну и где экономия? Если учесть, что брус изрядно дешевле, то получается, что ТС ни фига не бюджетно сделал.

    Трудно заставить человека понять что-либо, если его заработок обеспечивается непониманием этого" А. Смит

  • Полностью согласна, если денег лишних много, то можно в фирму, хотя эти фирмы работают, как посредники, также нанимают тех же частников. Или просто талибов нанимают за копейки. Если заказчику не хочется заморачиваться и цена тоже не имеет значения, то вопросов нет, пусть строит якобы фирма))), хотя, опять же повторюсь, косяков у фирм совсем немало, только, когда начинаешь тыкать носом в эти косяки, начинаешь слышать, что этого в договоре не было,что так мы не договаривались, или мы лучше знаем, как строить, или вот за это нужно доплатить. Если голова на плечах есть, можешь сам расчитать, сколько и чего, каждый день контролировать стройку, благо, любую ифнормацию можно в инете прочитать, то фирма абсолютно не нужна. Т.к. тем же самым талибам можешь ткнуть носом в их косяк и сказать переделывать, иначе денег не заплатишь.

    Никогда не рой яму другому. Используй ту, что он вырыл для тебя...

  • Главное отличие адекватного частника от фирмы-он не дает рекламы и работает по рекомендации предыдущих клиентов.При достойном качестве и разумной цене этого вполне достаточно,у каждого,кто на рынке более 2-3 лет как правило стит очередь.Такой частник по первому запросу выдает реквизиты предыдущей клиентуры,чтобы сомневающийся сам составил мнение и принял решение.Если этого не происходит,это уже первый звонок.А фирмы,они на сарафанку не сориентированы,работают от рекламы( которая стоит немало и заложена в ценник).АдекватныйЧастник все нюансы оговаривает на берегу,и если работать приходится по открытой смете(когда объемы работ меныются в процессе работы)заранее согласовывает расценку.Невыгодно ему экономически козлиться с клиентом,пищевая цепочка прерывается.А фирме пофиг,реклама приведет новых лохов.

    У меня очень мало принципов. Но те что есть я чту свято.
    " Я не друг,не слуга,я-кот, хожу где вздумается,гуляю сам по себе "(с)

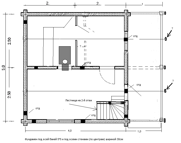
  • Здравствуйте! Интересует баня 4*5 из ОЦБ 160 с перегородкой посредине 4м. Второй этаж на 1 метр поднять и дальше под двухскатку. Фронтоны из бревна. Но сделать выступ из бревен, под веранду и балкон 1*5. Интересует стоимость только бревен с чашками, естественно без окон и дверей и прочего... И отдельно стоимость сборки? Хочу до Нового года собрать, а к следующему этапу приступить следующей осенью.
    И еще, кто то хвалит Сузунское бревно и ругает Томское, а кто то наоборот? А еще сколько кубов этого самого бревна? Были четыре предложения 13, 14, 16, и 20кубов!? Кому верить? :dnknow:

  • А на фига в бане балкон?

    Принятие решения часто свидетельствует о том, что человек устал думать.

  • А в сугроб зимой, после парной? :biggrin:

  • Банями я занимаюсь.Если кому надо добро пожаловать.

    Исправлено пользователем Baumer (07.10.11 13:21)

  • В ответ на: Здравствуйте! Интересует баня 4*5 из ОЦБ 160 с перегородкой посредине 4м. Второй этаж на 1 метр поднять и дальше под двухскатку. Фронтоны из бревна. Но сделать выступ из бревен, под веранду и балкон 1*5. Интересует стоимость только бревен с чашками, естественно без окон и дверей и прочего... И отдельно стоимость сборки? Хочу до Нового года собрать, а к следующему этапу приступить следующей осенью.
    И еще, кто то хвалит Сузунское бревно и ругает Томское, а кто то наоборот? А еще сколько кубов этого самого бревна? Были четыре предложения 13, 14, 16, и 20кубов!? Кому верить? :dnknow:
    [/цитата
    По материалу данных маловато. А по работе ,думаю, в сотню уложитесь.

  • "Фирма" частника и наймёт. Меня на пример.

  • Ну если у тебя нет загрузки-нанимайся под "фирму".Будешь отстегивать левому дяде на мерина для очередной соски.Оно тебе надо? :dnknow:

    У меня очень мало принципов. Но те что есть я чту свято.
    " Я не друг,не слуга,я-кот, хожу где вздумается,гуляю сам по себе "(с)

  • Вся красота в том ,что "отстёгивать" будет заказчик ... Моё -мне достанется по любому!

  • Если клиент лох-будет без вопросов.Тока по моим наблюдениям,их в последнее время становится все меньше,денюшку народ считать приучается.И перед тем,как нанять исполнителя ценник по рынку пробивает.Так что скорее всего,тебе башлять придется,на всех лохов уже не хватает.

    У меня очень мало принципов. Но те что есть я чту свято.
    " Я не друг,не слуга,я-кот, хожу где вздумается,гуляю сам по себе "(с)

  • В ответ на: По материалу данных маловато. А по работе ,думаю, в сотню уложитесь.
    Садитесь - два! Условие задачи нужно внимательно читать! :1: -Собрать сруб нужно. Какой еще материал? Друт(80-100)? наверное метров 600- 800, ну и шканты березовые штук 500 ?Может стропила еще? Метраж и количество не считал, а джут какой ширины нужен?
    В сотку уложусь? Стественно, тем более что сам с сынишкой собирать буду. Но если кто за тридцатку сделает- уступлю. Кстати, не подскажете, сколько кг. в пятиметровом бревне 160м?

  • делай сам не слушай этих умников, я сам собирал, сам бревна рубил в лапу и собирал, 4 на 5 сруб, из осины, в итоге все обошлось в 120 тысяч целиком . Сруб под крышу собрал в первый год, во второй год сделал отделку и получилось нормально,

  • /Мое - мне достанется по любому/ Это еще нужно спросить. Сколько - мое? Сытый или голодный? Если за сборку бревен мечтает получить сотку, то наверное сыт или с жирком :biggrin: С другой стороны может посмотреть? А вдруг это новичок и собирать он сруб будет полгода? 100/6=16,7 - :шок: Он не виноват, что он только учится зарабатывать денежку. Но при чем здесь я? Пусть ищет и дерзает а я лучше к спецу - Сергею позвоню, тем более что уже общались, может скидочку сделает, а может и советом поможет. :biggrin:

  • :respect: Блин, очьково. Уже лет 20 ничего монументального из дерева не строил. Хотя два моих деда были плотниками. Гены подскажут? Вроде и руки из того места? Главное начать, а там покатится? Глаза боятся, а руки делают? Спасибо за поддержку.

  • В ответ на: А на фига в бане балкон?
    Еслив честно, то сынуля настоял. Сейчас склоняюсь, что вход на второй этаж нужно сделать с веранды и второй этаж разделить на две комнаты.Без балкона! Но, блин, денюжек на 30- 50тыр? дороже будет?

  • По кубатуре можно посчитать исходя из картинки и диаметра бревна.+ идет нестандартный размер
    бревна,который может быть если размер строения не оптимизирован под размер бревна.

  • В ответ на: А на фига в бане балкон?
    Может такую? :dnknow: И второй этаж блокхаусом обшить? Сколько будет стоить стролилы поставить? Или может подскажете где посмотреть такую стропильную конструкцию? И утеплять эковатой?

  • Вот кто мне толком объяснит,почему народ до сих пор ведется на эти дебильные ломаные крыши? :dnknow:

    У меня очень мало принципов. Но те что есть я чту свято.
    " Я не друг,не слуга,я-кот, хожу где вздумается,гуляю сам по себе "(с)

  • Совсем плохо?:смущ:

  • На мой взгляд :death: но чтобы составить собственное мнение,надо в доме с накой крышей пожить.А самое паскудство начнется,когда лестницу,как на картинке надо будет строить.

    У меня очень мало принципов. Но те что есть я чту свято.
    " Я не друг,не слуга,я-кот, хожу где вздумается,гуляю сам по себе "(с)

  • Сотня--Фундамент+сруб+крыша (с фронтоном).

  • Ва-аще прав!

  • В ответ на: Сотня--Фундамент+сруб+крыша (с фронтоном).
    Ну и запросики у вас? А если фирма будет считать, то 300 получится за работу? : :rofl:
    Фундамент отпадает – уже готов. Сам с руками, перевез 6 кубов песка и 4 куба щебенки приглашенным уплатил всего 5 тыр. – боялся, что бетон застынет, таскать далеко 4 куба - вроде почти 10тонн?
    Осталось ОЦБ- 160 и стропила? - Сруб сложить из ОЦБ его производители обещали за 31.
    Остались стропила? :biggrin: ХА ХА, может и к вам обращусь, если хоть на один из многочисленных, мною заданных вопросов правильно ответите, может быть? А может на все вопросы ответите?
    Фронтон забыл? Да ерунда, думаю что сам за день сделаю! :спок:
    Но все равно, ты герой, и не самый дорогой :biggrin: мне тут талибы звонили и предлагали за подобную работу уплатить им 280тыр :rofl: - на три буквы сразу послал и посоветовал забыть мой номер телефона.

  • В ответ на: ...перешли к ценнику получилось 412т.р. со всеми пирогами от и до!!!
    Если вдруг заглянете в этот свой топ, поясните указанную цифру.
    Размеры сооружения, материал, отделка?
    А то возникает вопрос: "За что Вас так?" :улыб:

  • Если руки и голова нормальные и есть время и силы - строй сам. За два сезона управишься.
    Сделаешь хорошо - будешь героем в глазах соседей и своего сына.
    Получится не очень - есть отмазка, что строил сам и почти за бесплатно.:улыб:

  • А куда торопиться? Героя из себя корчить не собираюсь не пацан уже спину рвать, а в глазах сына я и так авторитет. К большому снегу производители ОЦБ соберут. Укроем под снег, а летом не спеша не торопясь приступим к остальному. Но тут вопросик возник по фронтону дома, что без балкона. Думал обшить его блокхаусом, но производители ОЦБ предлагают вместо блокхауса резать бревно повдоль и пришивать эти половинки к бруску что у крайних стропил. А как усушка п./ бревна? Пришьют, п./бревно усохнет и щели со временем появятся? Как быть? Пришивать на саморезы и когда усохнет снова перекрутить начиная с нижнего?

  • В ответ на: Вся красота в том ,что "отстёгивать" будет заказчик ... Моё -мне достанется по любому!
    Вся "красота" в том, что дураков-заказчиков практически не осталось)))) Даже те, у кого есть деньги, умеют их считать. По краней мере у нас в котеджном поселке практически не видела не одного, кто строил бы через фирму, все сами своими силами наняли талибов и сами все контролируют. Обращаться в фирму, перплатить непонятно за что, учитывая, что фирма на стройку и нос свой не кажет, т.к. у них строят одни талибы. Платить за гарантию, за договор:улыб: - тоже на фиг никому не нужно. Проще, если голова на плечах есть, нанять гостей с юга и самому все проконтролировать. На то он и мужчина, чтобы сам дом построить, или самому проконтролировать стройку. Если талибы что-то сделали неправильно, без всяких нареканий исправляют, т.к. знают, что в конце денег своих не получат. А вы попробуйте заставить русского что-то переделывать, сразу начинается: "мы так не договаривались, доплатите, мы лучше знаем, как делать". Обрщаться к русским бригадам тоже себе дороже, гонору много, а дела мало. Когда-то ранее по весне создавала тему "Ищу бригаду с юга", так сразу вот такие русские бригады))) стали писать в топике, якобы "дешевая колбаса" не значит хорошая. Сейчас с уверенностью могу сказать- не факт, что "дорогая колбаса" лучше:улыб: Перед началом стройки конкретно мониторили цены на строительство, просили сделать сметы. Во-первых, у в русских сметах офигенно завышены сами материалы, запредельно завышены работа и услуги по спецтехнике. Сейчас, когда закончили, тихо ужасаемся над теми сметами, которые были предосталены, накрутка минимум в 2 раза.

    Никогда не рой яму другому. Используй ту, что он вырыл для тебя...

  • Юра,не заморачивайся щелями.Нарежешь "лапши" из 50-ки и пришьешь нащельники изнутри.А в шов пакли для понта,визуально от цилиндровки фиг отличишь.Собственно полубревно-тот же блокхаус,только беззамковый.Если эти ребята могут,то пусть нарежут на полубревне фальц-тогда и нащельник изнутри шить не надо будет.

    У меня очень мало принципов. Но те что есть я чту свято.
    " Я не друг,не слуга,я-кот, хожу где вздумается,гуляю сам по себе "(с)

    Исправлено пользователем Badger211 (12.10.11 11:11)

  • Тоже далеко не пацан, дети взрослые. Но не торопясь, за лето собрал коробочку бани из бруса 150 5,5х5,5 по осям. Нелегко но приятно осознавать, что сам и почти без посторонней помощи, помогали друзья и родственники иногда. Фундамент(сваи буронабивные), стены, перекрытия второго этажа, стропильная система немногим более 100 т.р. Ну и на инструмент конечно потратился, но это уже лирика.

  • Милая Окси! Я, не берусь утверждать ,что лучше , а что хуже. "Талибы" , как Вы их называете,такие же разные как мы с вами . Я сам их нанимаю в помощники .Но только одну нацию. И лучших помощников пока не встречал. Вот только в одном из поселков ,где мне довелось ставить дом, к нам подошел один из "соседней" бригады. Гыр-гыр-гыр с моими ... Те на меня кажут. Подходит спрашивает:
    "что такое канопатить?"
    -Вы же ,говорю, только,что домину отгрохали и не знаете?
    -Нет.
    -Вы же строители!
    -Да!
    Ну, по улыбались мы конечно. Что тут скажешь-взял топорик пошел показывать.
    А насчёт переплаты так вы это зря.Никто не против самостоятельной закупки материалов. Никто! Только из "дров"-- работа дороже, сроки дольше.

  • да это и понтяно, что такие бригады на Хилоском не стоят:улыб: Они "из рук в руки" по рекомендациям передаются.

    Никогда не рой яму другому. Используй ту, что он вырыл для тебя...

  • Вот и результат. В пятницу привезли, а во вторник готово! Приятно было смотреть на работу этих мастеров.

    С фронтонами пока не стал заморачиваться. Сейчас сруб накрыл обрезной доской и пусть вымерзает – оседает до весны. Еще раз спасибо!!!

  • Молодец. Красиво получилось.

Записей на странице:

Перейти в форум

Модераторы: