Ответ на сообщение Re: ПОчему холодно в деревянном доме ???? пользователя Alter54
|
|
|
Ответ на сообщение Re: ПОчему холодно в деревянном доме ???? пользователя Alter54
Ответ на сообщение Re: ПОчему холодно в деревянном доме ???? пользователя эковата
Ответ на сообщение Re: ПОчему холодно в деревянном доме ???? пользователя Alter54
Ответ на сообщение Re: ПОчему холодно в деревянном доме ???? пользователя vqd
Ответ на сообщение Re: ПОчему холодно в деревянном доме ???? пользователя эковата
Ответ на сообщение Re: ПОчему холодно в деревянном доме ???? пользователя AndrewZ
Ответ на сообщение Re: ПОчему холодно в деревянном доме ???? пользователя Alter54
Как почему? Стоит холодный дом, деревянный, на улице -20, внутри -10 например, приезжает народ, топит печку или включает обогреватели, дышит, курит, жарит, варит... потом хлопает дверью и уезжает, вопрос - куда денется вся влага из воздуха, когда остынут стены, пол, потолок?? И так раз двадцать за зиму...Фигня полная. У знакомых баня уже лет 15 стоит рубленная. Топится каждые выходные и там гуливанит по 10-20 человек с субботы по воскресенье. Потом все уезжают и баня остается без отопления до следующей субботы. Ничерта не гниет, хотя по вашему и года бы не простояла...
Ответ на сообщение Re: ПОчему холодно в деревянном доме ???? пользователя эковата
Ответ на сообщение Re: ПОчему холодно в деревянном доме ???? пользователя MegaBolt
по вашему и года бы не простояла...Он такого не говорил
Ничерта не гниет,Вы смотрели ???
.
.
.Ответ на сообщение Re: ПОчему холодно в деревянном доме ???? пользователя эковата
Ответ на сообщение Re: ПОчему холодно в деревянном доме ???? пользователя КОЛО
Он такого не говорилКаюсь![]()

Вы смотрели ???Ага, смотрел на сколько мог.
А сравнение с аналогичными элементами рубленного дома с нормальной эксплуатацией который простоял те же 15 лет делали???Нет. Было же утверждение, что нельзя то топить, то не топить. Я показал пример, где реально с бревнами ничего не происходит в таком режиме эксплуатации. При чем топят баню "психи"
до 140-150 градусов. Ездят туда всегда. -40 за бортом не пугает.Ответ на сообщение Re: ПОчему холодно в деревянном доме ???? пользователя Alter54
Ну никак не удаётся нам передыхнуть от тя.. Ну тады колись откуды нам брать, замер то?Все собрались мерять Т поверхности...- те, не нравиться...мерять Т воздуха ...-ты обсмеиваешь...внутри материала....- тя тоже не вставляет.. Дык откуда температуру то нам сымать?? Ведь в домике топикстартера уже и нечего не осталось? Тока остаётся замерить Т в твоей воспалённой голове ,так вроде и там у тя находится другая часть тела
..Тока не надо кричать" Сам дурак" Давайте уж как-то больше конкретики,а то вас же нехрена нельзя понять.Ответ на сообщение Re: ПОчему холодно в деревянном доме ???? пользователя Alter54

У меня очень мало принципов. Но те что есть я чту свято.
" Я не друг,не слуга,я-кот, хожу где вздумается,гуляю сам по себе "(с)
Ответ на сообщение Re: ПОчему холодно в деревянном доме ???? пользователя MegaBolt

Ответ на сообщение Re: ПОчему холодно в деревянном доме ???? пользователя Badger211
Ответ на сообщение Re: ПОчему холодно в деревянном доме ???? пользователя SOL
У меня очень мало принципов. Но те что есть я чту свято.
" Я не друг,не слуга,я-кот, хожу где вздумается,гуляю сам по себе "(с)
Ответ на сообщение Re: ПОчему холодно в деревянном доме ???? пользователя Badger211
Ответ на сообщение Re: ПОчему холодно в деревянном доме ???? пользователя Trubadur 61
Какое образование у вас, огласите сударь?? Ну да ладно, и так понятно... для общего развития тебе, основная задача тепловизора не замер конкретной температуры какой-то поверхности, а получение картины РАЗНОСТИ температур на площади которую обследуют... понятно, нет?? Хуже нет профанов, уверенных в своей правоте и голосящих типа трубадура... Ликбезы проводить среди таких тупней дело неблагодарное и бесполезное...Ответ на сообщение Re: ПОчему холодно в деревянном доме ???? пользователя SOL
про что СНиП говорит? можно поподробнейЕсть такая программка, "Термок" называется, там можете всё элементарно посчитать, любые стены, пол, потолок из набора любых строительных материалов. В инете она есть, бесплатная.
Ответ на сообщение Re: ПОчему холодно в деревянном доме ???? пользователя SOL
У меня очень мало принципов. Но те что есть я чту свято.
" Я не друг,не слуга,я-кот, хожу где вздумается,гуляю сам по себе "(с)
Ответ на сообщение Re: ПОчему холодно в деревянном доме ???? пользователя Alter54
Про поверхности вам же писали"что термограммы будут выложенны для всеобщего просмотра и обсуждения" и ясен пень что отсрел хотели производить во многих точках ,чтобы потом проанализировать.Мне приятно, что до вас эт постепенно доходит. Вы опять начинаете флудить про " наши мозолистые руки" Вам же были заданы конкретные вопросы и все хотят услышать ваши рекомендации как "обмануть природу" и где в городе происходит это молниеносное гниение?Пример же вам приводили не только бань? 
Ответ на сообщение Re: ПОчему холодно в деревянном доме ???? пользователя Alter54
.
. Исправлено пользователем demetrodon (09.12.09 11:32)
Ответ на сообщение Re: ПОчему холодно в деревянном доме ???? пользователя demetrodon


Ответ на сообщение Re: ПОчему холодно в деревянном доме ???? пользователя demetrodon
Строить упомянутый SOLом домик с соблюдением всех норм СНиПа это перебор.если жить по правилам, раньше сдохнешь )))
Ответ на сообщение Re: ПОчему холодно в деревянном доме ???? пользователя demetrodon
У меня очень мало принципов. Но те что есть я чту свято.
" Я не друг,не слуга,я-кот, хожу где вздумается,гуляю сам по себе "(с)
Ответ на сообщение Re: ПОчему холодно в деревянном доме ???? пользователя Trubadur 61
Ответ на сообщение Re: ПОчему холодно в деревянном доме ???? пользователя Alter54

Ответ на сообщение Re: ПОчему холодно в деревянном доме ???? пользователя vqd
Вы на посты товарища Трубадура еще внимание обращаете?почему модераторы на его посты внимания не обращают?![]()

ART DE VIVRE
Ответ на сообщение Re: ПОчему холодно в деревянном доме ???? пользователя Дозорный
Ответ на сообщение Re: ПОчему холодно в деревянном доме ???? пользователя Alter54

Ответ на сообщение Re: ПОчему холодно в деревянном доме ???? пользователя vqd
Вы на посты товарища Трубадура еще внимание обращаете?Да ещё теплится надежда заставить человека думать и анализировать, может не совсем ещё потерян для общества...![]()

Ответ на сообщение Re: ПОчему холодно в деревянном доме ???? пользователя Alter54
Да ещё теплится надежда заставить человека думать и анализировать, может не совсем ещё потерян для общества...Если у объекта нет желания то это уже бесполезно )) Я уверен что когда он увидит данные с тепловизора он сам себе скажет:- "Охренеть, до чего техника то дошла" и потом возможно из праздного интереса посмотрит что такое тепловизор ))![]()
Ответ на сообщение Re: ПОчему холодно в деревянном доме ???? пользователя Alter54

У меня очень мало принципов. Но те что есть я чту свято.
" Я не друг,не слуга,я-кот, хожу где вздумается,гуляю сам по себе "(с)
Ответ на сообщение Re: ПОчему холодно в деревянном доме ???? пользователя Trubadur 61
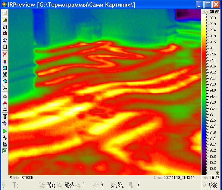
Ну склизкий! Ну ни как тя ни пронять! Учёность твою не победить! Всё ссылаешся на других! Сам то пошто не отвечаешь на конкретные вопросы,ихде находются те сгнившие домики,чем отличается панорама, от анализа замера Т внескольких точках пола в комнате 12квадратов?...Ну склизкий !Вот реальная темограма полов в свежепостроенном коттедже, покажите в каких точках вам было бы интересно узнать температуру и смысл этого знания, плизз???![]()
![]()
Ответ на сообщение Re: ПОчему холодно в деревянном доме ???? пользователя Alter54

Ответ на сообщение Re: ПОчему холодно в деревянном доме ???? пользователя vqd
Вы чего? Зачем травмировать психику то?Да... что-то я погорячился... нужно удалить файл...
А то он и так собрался опалубку собирать под раствор из эковаты и в дырки урсу засовывать, а после этого он измерит температуру в нескольких точках и точно определит места наибольших теплопотерь.![]()

Ответ на сообщение Re: ПОчему холодно в деревянном доме ???? пользователя Badger211
По СНиПу.Он ,как и прочие нормативные документы писан для того , чтобы получить заведомо нужный результат.А в СНиПах есть такое определение как «дом, куда можно было бы приезжать на выходные»?
А если нет (в чем я уверен), то «для того, чтобы получить заведомо нужный результат» он не подходит.Исправлено пользователем demetrodon (09.12.09 12:46)
Ответ на сообщение Re: ПОчему холодно в деревянном доме ???? пользователя demetrodon
У меня очень мало принципов. Но те что есть я чту свято.
" Я не друг,не слуга,я-кот, хожу где вздумается,гуляю сам по себе "(с)
Ответ на сообщение Re: ПОчему холодно в деревянном доме ???? пользователя Trubadur 61
Ну склизкий! Ну ни как тя ни пронять! Учёность твою не победить!Время есть, ещё ликбез, бесплатно причём!
,чем отличается панорама, от анализа замера Т внескольких точках пола в комнате 12квадратов?...Ну склизкий !![]()
![]()
Ответ на сообщение Re: ПОчему холодно в деревянном доме ???? пользователя ЭкоГородок
Купите котёл на газе, к нему баллон 50л и на замену 25л.А "чудо-печ" в качестве вентиляции оставить.А, ещё не надо экономить на батареях,у чугунных КПД-фигня.сколько балонов нужно что бы отапливать дом в 120кв.м.? понимаю что нужно знать мощость катла, предположим что он у нас 6 квт
р.s.Лучше один раз вложится,за то зиму в тепле жить!
Исправлено пользователем SOL (09.12.09 15:27)
Ответ на сообщение Re: ПОчему холодно в деревянном доме ???? пользователя SOL
сколько балонов нужно что бы отапливать дом в 120кв.м.? понимаю что нужно знать мощость катла, предположим что он у нас 6 квтЭто не такая простая, а главное довольно опасная затея. Суть в том, что заправленый "под завязку" баллон в тепле запросто может рвануть. К тому ж, расход ограничен площадью испарения- тепературой баллона. Ставят грлянду баллонов в специальное, обогреваемое, вне дома помещение.
П.3
Анонимный пользователь
Ответ на сообщение ПОчему холодно в деревянном доме ???? пользователя dendav

Ответ на сообщение Re: ПОчему холодно в деревянном доме ???? пользователя Alter54
Кто пытался зделать ветрозащиту из фанеры и запихнуть под неё урсу?Чёж передёргивать?Кто пытался оскорблять, абсолютно не аргументируя , а потом начинал плакаться ,что его обижают?Кто собирался выцеливать мостики холода,а потом" панорамой снимать весь котедж" Почему челу нельзя замерить Т в шести точках пола и шести точках потолка 12ти метровой комнаты и зделать вывод чё утеплять он будет?Вы вообще-то жили когда нибудь в деревянном доме? Вас спрашивают: почему "любит у нас народ безапеляционно осуждать то, в чём нифига не смыслит... " кто и кого Ответ на сообщение Re: ПОчему холодно в деревянном доме ???? пользователя Trubadur 61
Ответ на сообщение Re: ПОчему холодно в деревянном доме ???? пользователя vqd