Картинка
При моих размерах как лучше сделать: Зеленые фермы или светло-зеленые балки?
Как выбрать параметры труб для всего этого?
|
|
|
Ответ на сообщение Помогите сочинить навес пользователя Nemoj
жил да был аноним.
отвратительно с ним.
без него - хорошо.
жаль, что он тут везде.
Ответ на сообщение Помогите сочинить навес пользователя Nemoj
Ответ на сообщение Помогите сочинить навес пользователя Nemoj
, то она вырождается в составную балку из двух поясов, связанных между собой упругими связями сдвига, Вам оно надо, проще простую балку применить и дешевле.Ответ на сообщение Помогите сочинить навес пользователя Nemoj
Ответ на сообщение Re: Помогите сочинить навес пользователя Дровосек
Ответ на сообщение Re: Помогите сочинить навес пользователя Nemoj
Ответ на сообщение Re: Помогите сочинить навес пользователя A2L
Ответ на сообщение Re: Помогите сочинить навес пользователя Nemoj

Ответ на сообщение Re: Помогите сочинить навес пользователя Дровосек
Ответ на сообщение Помогите сочинить навес пользователя Nemoj
Ответ на сообщение Re: Помогите сочинить навес пользователя Дровосек
Для ферм с паралельными поясами, оптимальная высота 1/8 - 1/10 пролёта, ферма что высотой 16см не ферма, если по наукеМля! Мне всё больше и больше нравится на форуме торчать...), то она вырождается в составную балку из двух поясов, связанных между собой упругими связями сдвига, Вам оно надо, проще простую балку применить и дешевле.
Ответ на сообщение Re: Помогите сочинить навес пользователя Nemoj
Ответ на сообщение Re: Помогите сочинить навес пользователя Nemoj
Ответ на сообщение Re: Помогите сочинить навес пользователя Nemoj

Ответ на сообщение Re: Помогите сочинить навес пользователя Nikroman
[Какая принципиальная разница между балкой и фермой по твоему разумению? Отношение высоты к пролету?Папа, дак откуда мне ж знать, я ж бетон с лейки в колхозе поливаю, я даже не знаю балка и ригель это одно и тоже или нет

Ответ на сообщение Re: Помогите сочинить навес пользователя Дровосек
Ответ на сообщение Re: Помогите сочинить навес пользователя КОЛО
Ответ на сообщение Re: Помогите сочинить навес пользователя Дровосек

Ответ на сообщение Re: Помогите сочинить навес пользователя Nikroman

Ответ на сообщение Re: Помогите сочинить навес пользователя Nemoj
Ответ на сообщение Re: Помогите сочинить навес пользователя Дровосек
Ответ на сообщение Re: Помогите сочинить навес пользователя Nemoj
Ответ на сообщение Re: Помогите сочинить навес пользователя Nemoj
Условие прочности по нормальным напряжениям имеет вид:Ещё раз прочитал. Сюда сигма 240, не важно какая сталь С245 или 255.
σmax=Mxmax/Wx≤[σ]
Так?
Ответ на сообщение Re: Помогите сочинить навес пользователя Дровосек
Ответ на сообщение Re: Помогите сочинить навес пользователя Nemoj
Ответ на сообщение Re: Помогите сочинить навес пользователя Nikroman
Ответ на сообщение Re: Помогите сочинить навес пользователя AntonGuk
Мой дом турма
Ответ на сообщение Re: Помогите сочинить навес пользователя Nemoj
Ответ на сообщение Re: Помогите сочинить навес пользователя баджер
Ответ на сообщение Re: Помогите сочинить навес пользователя Nemoj
Вторая итерация проектаВот "синенькие" связи нужно сделать до "крепления к дому". Т.е. зашить нужно все панели.
Ответ на сообщение Re: Помогите сочинить навес пользователя баджер
Нарисуй расчетку,гдеб балка работала на центральное/внецентреное/ сжатие.Для чего нарисовать и кому?
Ответ на сообщение Re: Помогите сочинить навес пользователя AntonGuk
Ответ на сообщение Re: Помогите сочинить навес пользователя Nemoj
Ответ на сообщение Re: Помогите сочинить навес пользователя AntonGuk
Ответ на сообщение Re: Помогите сочинить навес пользователя Дровосек
Ответ на сообщение Re: Помогите сочинить навес пользователя Nikroman
Исправлено пользователем AntonGuk (16.05.13 10:19)
Ответ на сообщение Re: Помогите сочинить навес пользователя Nemoj
Ответ на сообщение Re: Помогите сочинить навес пользователя Nemoj
Ответ на сообщение Re: Помогите сочинить навес пользователя AntonGuk
Мой дом турма
Ответ на сообщение Re: Помогите сочинить навес пользователя баджер
Ответ на сообщение Re: Помогите сочинить навес пользователя Nemoj
), хорошо что для Новосиба без изменений, а Вы так полагаю рядом или в г. Шахты.
.Ответ на сообщение Re: Помогите сочинить навес пользователя AntonGuk
Мой дом турма
Ответ на сообщение Re: Помогите сочинить навес пользователя AntonGuk
Ответ на сообщение Re: Помогите сочинить навес пользователя Дровосек
Ответ на сообщение Re: Помогите сочинить навес пользователя баджер
Ответ на сообщение Re: Помогите сочинить навес пользователя Nemoj
Понятно, сделаю 45 градусов.При ваших доводах к древесине почему же вы тогда сделали стропильную систему из дерева, все проблемы которые вы описал решаются защитными составами))?? У вас копеечные нагрузки и не огромные пролеты, металл в вашем случае придется подбирать по конструктивным соображениям, что ухудшит экономические показатели строения+затраты времени и сил на сварку, сварку нужно делать качественно. Ну еще эстетический довод: металл правильно подобранный будет смотреться "хилым", а деревяшки вы можете поставить помасивнее
Металл не искривляется при изменении влажности, металл не едят жучки, металл не горит, металл на пролет 4,8 м, как мне кажется, проще перекинуть.
Ответ на сообщение Re: Помогите сочинить навес пользователя Nemoj
Понятно, сделаю 45 градусов.Это идеальный угол, но применяется угол от 35 до 55 градусов.
Ответ на сообщение Re: Помогите сочинить навес пользователя AntonGuk
..... Ну еще эстетический довод: металл правильно подобранный будет смотреться "хилым", а деревяшки вы можете поставить помасивнееДа Вы что, он будет смотреться ажурным, а не хилым, прелесть металла в том что он самый "лёгкий" несущий материал. Согласен что его "ажурность" проявляется в объёмных конструкциях а не в навесах, но.

Исправлено пользователем Дровосек (16.05.13 14:50)
Ответ на сообщение Помогите сочинить навес пользователя Дровосек
Исправлено пользователем AntonGuk (16.05.13 14:57)
Ответ на сообщение Re: Помогите сочинить навес пользователя AntonGuk
Мой дом турма
Ответ на сообщение Re: Помогите сочинить навес пользователя AntonGuk
Исправлено пользователем Nikroman (16.05.13 15:01)
Ответ на сообщение Re: Помогите сочинить навес пользователя баджер
Ответ на сообщение Помогите сочинить навес пользователя Nikroman
Исправлено пользователем AntonGuk (16.05.13 15:08)
Ответ на сообщение Помогите сочинить навес пользователя AntonGuk

Ответ на сообщение Помогите сочинить навес пользователя Nikroman
Ты скажи еще, что высокопрочные болты.........У меня однажды в общих указаниях на первом листе было написано - "После постановки высокопрочных болтов, для предотвращения самооткручивания, гайки болтов обварить по контуру", и печати синие стояли, всё как полагается.
Ответ на сообщение Помогите сочинить навес пользователя AntonGuk
Ответ на сообщение Re: Помогите сочинить навес пользователя Дровосек

Ответ на сообщение Помогите сочинить навес пользователя Nikroman
Ответ на сообщение Re: Помогите сочинить навес пользователя Дровосек

Ответ на сообщение Re: Помогите сочинить навес пользователя Дровосек
Ответ на сообщение Re: Помогите сочинить навес пользователя Nikroman
Исправлено пользователем AntonGuk (16.05.13 15:35)
Ответ на сообщение Помогите сочинить навес пользователя AntonGuk

Исправлено пользователем Nikroman (16.05.13 15:42)
Ответ на сообщение Помогите сочинить навес пользователя Nikroman
Ответ на сообщение Помогите сочинить навес пользователя AntonGuk
Исправлено пользователем Nikroman (16.05.13 15:51)
Ответ на сообщение Re: Помогите сочинить навес пользователя Nemoj
Ответ на сообщение Re: Помогите сочинить навес пользователя Nemoj
Исправлено пользователем Дровосек (20.05.13 00:39)
Ответ на сообщение Помогите сочинить навес пользователя Дровосек
Ответ на сообщение Re: Помогите сочинить навес пользователя Дровосек
Ответ на сообщение Re: Помогите сочинить навес пользователя Дровосек
Ответ на сообщение Re: Помогите сочинить навес пользователя Nemoj
Ответ на сообщение Re: Помогите сочинить навес пользователя Nemoj
Ответ на сообщение Re: Помогите сочинить навес пользователя Nemoj
Ответ на сообщение Re: Помогите сочинить навес пользователя КОЛО
Ответ на сообщение Re: Помогите сочинить навес пользователя Nemoj
Ответ на сообщение Re: Помогите сочинить навес пользователя Nemoj
Ответ на сообщение Re: Помогите сочинить навес пользователя Nemoj
и чтобы шифер с крыши не мешал навесу стену нужно на 1-2 камня разобрать.Удачнее разобрать шифер.
. Справа стена каменная, слева деревяннаяКрыша то у них единая.
Исправлено пользователем КОЛО (21.05.13 18:04)
Ответ на сообщение Re: Помогите сочинить навес пользователя Nemoj

Ответ на сообщение Помогите сочинить навес пользователя КОЛО
Ответ на сообщение Re: Помогите сочинить навес пользователя эковата
Делал лет 10 назад. Стоит как миленький. Даже снег весной не скидываю. Все построенно из 50. Пол 40. Крыша 25.Шикарный участок у Вас, завидую по хорошему Вам-мечта моя дом на таком участке

Ответ на сообщение Re: Помогите сочинить навес пользователя Nemoj
Ответ на сообщение Re: Помогите сочинить навес пользователя КОЛО
Столбы вкапывать - на три максимальных глубины промерзания.Для чего столбы так закапывать? Думаю и метра хватило бы, а то и меньше. Я бы вырыл ямку в пол метра глубиной размером на сколько получиться что не осыпались стенки, заполнил бетоном ее и туда столбы воткнуть, на время набора прочности столбы развязать подкосами. Тут же почти не будет горизонтальных усилий, только конструктивно обеспечить неизменяемость каркаса.
Ответ на сообщение Re: Помогите сочинить навес пользователя AntonGuk
Ответ на сообщение Re: Помогите сочинить навес пользователя КОЛО
Ответ на сообщение Re: Помогите сочинить навес пользователя AntonGuk

Ответ на сообщение Re: Помогите сочинить навес пользователя КОЛО
Ответ на сообщение Re: Помогите сочинить навес пользователя AntonGuk
Ответ на сообщение Помогите сочинить навес пользователя Nemoj
....вперёд за цыганской звездой кочевой...
Ответ на сообщение Re: Помогите сочинить навес пользователя cortes
Прикольный! 
Ответ на сообщение Re: Помогите сочинить навес пользователя КОЛО
Столбы вкапывать - на три максимальных глубины промерзания.Может просто грунтовкой ХВ окрасить?

Ответ на сообщение Re: Помогите сочинить навес пользователя прораб

Ответ на сообщение Re: Помогите сочинить навес пользователя прораб
Ответ на сообщение Re: Помогите сочинить навес пользователя КОЛО
. Если ты такой мегарасчетчик и мегаконструктор выложи свой расчет сюда, а то насоветуешь автору, что над ним все соседи будут смеяться, когда он будет трубы на 3 глубины промерзания зарывать, ну либо на худой конец хотябы расчетные нагрузки, которые ты собрал для расчета по 1 приложению СНиП свайные фундаментыОтвет на сообщение Re: Помогите сочинить навес пользователя Nemoj
Эти 240 кг обопрутся на стропила и на большую ферму, т.е. на стропила прийдется около 120 кг.Когда я сказал что на стропилу с каждой средней балки придёт 240кг, это значит именно 240 кг на стропилу, а на большую ферму будет приходится по 680 кг, а на маленькую по 380кг с каждой балки.
Ну да ладно. Я все-таки наверно сделаю возле дома третий ряд ферм. На дом не буду опираться. Посмотрел поближе, стропила не внушают доверия.
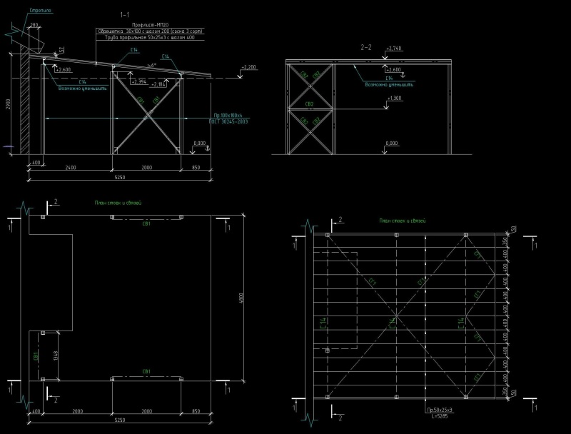
Местные мастера посоветовали использовать для столбов трубу 60х60х2, вместо ферм 60х40х3, стопила 60х40х2, прогоны 25х40х2.
Еще они сказали, что никакие дополнительные связи не нужны. Поэтому доверия у меня их предложения не вызывают.
Как вы думаете труба 60х40х3 вместо ферм - это нормально на пролете 4,80?
Ответ на сообщение Re: Помогите сочинить навес пользователя AntonGuk
.Ответ на сообщение Re: Помогите сочинить навес пользователя Дровосек
Ответ на сообщение Re: Помогите сочинить навес пользователя КОЛО
Ответ на сообщение Re: Помогите сочинить навес пользователя Дровосек
Ответ на сообщение Re: Помогите сочинить навес пользователя AntonGuk
мой совет тебе найди проектировщика, он тебе сделает этот навес за небольшую суммуЭто он из без Вас знает.

Ответ на сообщение Re: Помогите сочинить навес пользователя Дровосек
Ответ на сообщение Re: Помогите сочинить навес пользователя КОЛО
Бмп конвертируешь потом в png.Оказывается всё так просто
Проследи только чтобы изначально на БМП надписи видно было.

Ответ на сообщение Re: Помогите сочинить навес пользователя Дровосек
Ответ на сообщение Re: Помогите сочинить навес пользователя КОЛО
Ответ на сообщение Re: Помогите сочинить навес пользователя Дровосек
Ответ на сообщение Re: Помогите сочинить навес пользователя Nemoj
.Ответ на сообщение Re: Помогите сочинить навес пользователя Дровосек
Ответ на сообщение Re: Помогите сочинить навес пользователя Nemoj
Ответ на сообщение Re: Помогите сочинить навес пользователя Nemoj
Ответ на сообщение Re: Помогите сочинить навес пользователя Nemoj
Я думаю, неразрезные прогоны будут жестче. Так? Тогда я за них.Прогон, это до такой степени второстепенный элемент, что нам бы пора уже о нём и забыть, хотите ставить сверху - ставьте, просто мне хочется чтоб навес получился максимально высоко, будет и солнышка поболе и давящего ощущения меньше, площадь навеса то не маленькая.
Высота ферм меня не волнует. Если там вместо ферм пойдут трубы, я согласен. Что мне важно: Столбы в тех местах, где указано. Над головой не менее 2,1 м. Верхний край на высоте 3 м.
Вот еще что. Там где маленькая красная ферма, Можно сделать нижний край ее дугой. Будет прочнее? А по середине, чтобы проход оставался высокий.
Ответ на сообщение Re: Помогите сочинить навес пользователя КОЛО
жесткое защемление колонны в грунте.Теперь понял о чем речь.

Ответ на сообщение Re: Помогите сочинить навес пользователя прораб

Ответ на сообщение Re: Помогите сочинить навес пользователя Дровосек
Ответ на сообщение Re: Помогите сочинить навес пользователя Дровосек
желаете убрать ветер, обсуждаемо.Нельзя для таких конструкций ветер убирать.
Ответ на сообщение Re: Помогите сочинить навес пользователя Дровосек
желаете убрать ветер, обсуждаемо.Нельзя для таких конструкций ветер убирать.
Ответ на сообщение Re: Помогите сочинить навес пользователя Дровосек
Ответ на сообщение Re: Помогите сочинить навес пользователя Дровосек
Ответ на сообщение Re: Помогите сочинить навес пользователя Дровосек
Ответ на сообщение Re: Помогите сочинить навес пользователя КОЛО
С ветром у меня вообще каша уже в голове (всегда рассматривал замкнутые контура), я и эти 40кг/м2 прикладывать не хотел, как учесть пульсацию не знаю.желаете убрать ветер, обсуждаемо.Нельзя для таких конструкций ветер убирать.
Сейчас у Вас ветер не до конца учтен.
.......
Это дает сжатие на балки/прогоны (т.е. уже не чистый изгиб, а внецентренное сжатие), соответственно сечение увеличится.
Ответ на сообщение Re: Помогите сочинить навес пользователя Nemoj
, я там выше читал что стыковать хотели, стыковать можно, но стык нужно расположить на 0.15 х 2.1м от продольной балки, это если будете монтировать по неразрезной схеме и расположите его первым от дома, ну и если Вы сварщик нормальный, а то я в таких толщинах постоянно дырки прожигаю.Ответ на сообщение Re: Помогите сочинить навес пользователя Nemoj
Исправлено пользователем Дровосек (25.05.13 02:02)
Ответ на сообщение Re: Помогите сочинить навес пользователя Nemoj
Ответ на сообщение Re: Помогите сочинить навес пользователя Дровосек
Ответ на сообщение Помогите сочинить навес пользователя Дровосек
Ответ на сообщение Re: Помогите сочинить навес пользователя Nemoj
Ответ на сообщение Re: Помогите сочинить навес пользователя Дровосек
Ответ на сообщение Re: Помогите сочинить навес пользователя Nemoj
Ответ на сообщение Re: Помогите сочинить навес пользователя Дровосек
Ответ на сообщение Re: Помогите сочинить навес пользователя Nemoj
Ответ на сообщение Re: Помогите сочинить навес пользователя Дровосек
Ответ на сообщение Re: Помогите сочинить навес пользователя Дровосек
Ответ на сообщение Re: Помогите сочинить навес пользователя КОЛО
Изложено мутновато конечнот ва СНиПе.Я этот навес по всякому уже рассматривал, габариты дома принимал приблизительные, у меня при всех раскладах - ветер является разгружающим или "0", но я ввёл +40кг/м2, потаму что до конца не понимаю всех зафихрений хоть с подветренной хоть с наветренной.
........
Сейчас СКАД и ЛИРа умеют считать этото дело.
.Ответ на сообщение Re: Помогите сочинить навес пользователя Nemoj
Там такая картина.......в 15 см от нее............сантиметров 40 шириной............хочется оставить...........Назначайте место первой стойки от дома.
Ответ на сообщение Re: Помогите сочинить навес пользователя КОЛО
Ответ на сообщение Re: Помогите сочинить навес пользователя Дровосек
при открытом скаде, часть расчётов в ручную делаюЭто нормально.

Ответ на сообщение Re: Помогите сочинить навес пользователя КОЛО

Ответ на сообщение Re: Помогите сочинить навес пользователя Дровосек
Ответ на сообщение Re: Помогите сочинить навес пользователя Дровосек
Ответ на сообщение Re: Помогите сочинить навес пользователя Nemoj
Ответ на сообщение Re: Помогите сочинить навес пользователя Nemoj
Ответ на сообщение Re: Помогите сочинить навес пользователя Дровосек
Исправлено пользователем AntonGuk (27.05.13 10:49)
Ответ на сообщение Помогите сочинить навес пользователя AntonGuk
Ответ на сообщение Помогите сочинить навес пользователя AntonGuk
Если ветер собираете по снип 2.01.07-85*А если по СП 20.13330.2011 - тогда как быть???
.Ответ на сообщение Re: Помогите сочинить навес пользователя Дровосек
Ответ на сообщение Re: Помогите сочинить навес пользователя КОЛО
Ответ на сообщение Re: Помогите сочинить навес пользователя КОЛО
Ответ на сообщение Re: Помогите сочинить навес пользователя Nemoj
Ответ на сообщение Re: Помогите сочинить навес пользователя Nemoj
Ответ на сообщение Re: Помогите сочинить навес пользователя AntonGuk
Ответ на сообщение Re: Помогите сочинить навес пользователя Дровосек
Ответ на сообщение Re: Помогите сочинить навес пользователя Nemoj
Ответ на сообщение Re: Помогите сочинить навес пользователя Nemoj
Ответ на сообщение Re: Помогите сочинить навес пользователя Nemoj
Ответ на сообщение Re: Помогите сочинить навес пользователя AntonGuk
Вы же сами написали согласно снип. Ваше дело учтите его в расчете и поделитесь прибавкой, я не против.Както неубедительно Вы свои рекомендации НЕ учитывать пульсацию для навеса обосновываете.
объясните с удовольствием послушаю.Объясняю - эта послабление относится ТОЛЬКО длля указанных типов сооружений т.к. для них существует ограничение по отклонению верха конструкции от вертикальной оси от воздействия горизонтальной нагрузки, которое рассчитывается отдельно.
на сколько я понимаю h в нашем случае стремиться к нулю,Неправильно Вы понимаете. Если еденицу поделить на ноль - будет бесконечность.
Ответ на сообщение Re: Помогите сочинить навес пользователя КОЛО
.....Красиво. Я не знал о таком методе, хотя как лежит снег на различных кровлях с учётом ветра, всегда внимание обращаю.
Рисуете геометрию кровель, соединяете линией конек с краем навеса..........
Ответ на сообщение Re: Помогите сочинить навес пользователя КОЛО
Както неубедительно Вы свои рекомендации НЕ учитывать пульсацию для навеса обосновываете.Я привел ссылку из СНиП, что для Вас убедительнее.
Совершенно мне тогда непонятно - зачем вы их даете, раз пояснить ничего не в состоянии?
Объясняю - эта послабление относится ТОЛЬКО длля указанных типов сооружений т.к. для них существует ограничение по отклонению верха конструкции от вертикальной оси от воздействия горизонтальной нагрузки, которое рассчитывается отдельно.Т.е. Вы предлагаете учесть пульсацию, но при этом не нормировать перемещения верха колон? Т.е. при ветре весь навес будет колбасить, но он будет стоять зная, что его посчитали на пульсационную составляющую? Ну и источник данного утверждения, если можно.
При обеспечении этих требований по отклонению верха от вертикальной оси и при указанных в этом пункте параметрах - динамическая составляющая исключается т.к. частота собственных колебаний конструкции не будет резонировать с пульсацией ветра со 100% вероятностью.
Если Вы подберете жесткости колонн навеса с учетом такого-же ограничения как для этих сооружений - тогда можно будет пульсацию не учитывать.
Ответ на сообщение Re: Помогите сочинить навес пользователя Дровосек
Ответ на сообщение Re: Помогите сочинить навес пользователя Nemoj
Ответ на сообщение Re: Помогите сочинить навес пользователя Nemoj
И все 4,8 м будут держаться на сварном шве?А что тут такого, будет расчетный шов, со своим катетом и длиной, если вы его сможете сварить, то будет держаться
Ответ на сообщение Re: Помогите сочинить навес пользователя Nemoj
Ответ на сообщение Re: Помогите сочинить навес пользователя AntonGuk
Ответ на сообщение Re: Помогите сочинить навес пользователя Nemoj
Ответ на сообщение Re: Помогите сочинить навес пользователя AntonGuk
Ответ на сообщение Re: Помогите сочинить навес пользователя AntonGuk
Ответ на сообщение Re: Помогите сочинить навес пользователя Дровосек
.Ответ на сообщение Re: Помогите сочинить навес пользователя Дровосек
Ответ на сообщение Re: Помогите сочинить навес пользователя AntonGuk
Ответ на сообщение Re: Помогите сочинить навес пользователя Nemoj
Ответ на сообщение Re: Помогите сочинить навес пользователя Nemoj
Ответ на сообщение Re: Помогите сочинить навес пользователя КОЛО
Куб снега весит в диапазоне от 200 кг/м3 (свевыпавший рыхлый) до 900 кг/м3 (лед).Я надеюсь вы в экспертизу такой сбор нагрузок не отдаете?
Слежавшийся снег весит примерно 600-700 кг/м3.
Наибольший вес и толшина снегового покрова - весна начало снеготаяния.

Ответ на сообщение Re: Помогите сочинить навес пользователя Nemoj
Ответ на сообщение Re: Помогите сочинить навес пользователя Nemoj
Ответ на сообщение Re: Помогите сочинить навес пользователя AntonGuk
Ответ на сообщение Re: Помогите сочинить навес пользователя AntonGuk
Я надеюсь вы в экспертизу такой сбор нагрузок не отдаете?Зря Вы так![]()
.Ответ на сообщение Re: Помогите сочинить навес пользователя Дровосек
Зря Вы такЯ не согласен что толщину снежного покрова можно соотносить с каким то весом, слишком много факторов влияют на вес снежного покрова, что бы от его толщины принимать нагрузку на сооружение. Сейчас тоже бывает продувают здания со сложными покрытиями. Да перекину в скад, главное утвердить схему.
Ведь на самом деле, прежде чем всё свелось в таблички снип, основные контура продували в трубах на ветер и на ветер с порошком имитирующим снег.
На крышу соседа иногда бывает посмотреть полезнее чем определять снег по снипу.
В автокаде рисуете, чтоб потом в скад перекинуть рсчётную схему?
Ответ на сообщение Re: Помогите сочинить навес пользователя Nemoj
Ответ на сообщение Re: Помогите сочинить навес пользователя AntonGuk
Ответ на сообщение Re: Помогите сочинить навес пользователя AntonGuk
Я надеюсь вы в экспертизу такой сбор нагрузок не отдаете?Нда уж
.
.
.Ответ на сообщение Re: Помогите сочинить навес пользователя AntonGuk
Ответ на сообщение Re: Помогите сочинить навес пользователя Nemoj
Ответ на сообщение Re: Помогите сочинить навес пользователя AntonGuk
что бы от его толщины принимать нагрузку на сооружение.Так и от чегож её тогда родимую принимают, как не от толщины и собственного веса?
Ответ на сообщение Re: Помогите сочинить навес пользователя КОЛО
Ответ на сообщение Re: Помогите сочинить навес пользователя КОЛО
Ответ на сообщение Re: Помогите сочинить навес пользователя AntonGuk
Ответ на сообщение Помогите сочинить навес пользователя Nemoj
Ответ на сообщение Re: Помогите сочинить навес пользователя Nemoj
Швеллера два человека поднимут? Я вижу вашу схему как рабочий вариант. А что скажите про мою картинку? Фермы имеют какое-либо преимущество перед швеллерами?На данном пролете преимуществ, кроме эстетики нет. Сечения нужно будет уточнить после расчета.
Ответ на сообщение Re: Помогите сочинить навес пользователя euk
Ответ на сообщение Re: Помогите сочинить навес пользователя Nemoj
Ответ на сообщение Re: Помогите сочинить навес пользователя AntonGuk
Докажите мне ваш выбор схемы 7Вот чудак-человек.
даже не знал что там крыльцо или входДопустим.
вы здесь делаете мне не понятноА Вам зачем понимать это?
.Ответ на сообщение Re: Помогите сочинить навес пользователя AntonGuk
От профильных труб старайтесь отходитьВ прайс Деркула заглянуть - религия не позволила?

Ответ на сообщение Re: Помогите сочинить навес пользователя КОЛО
Исправлено пользователем AntonGuk (28.05.13 10:04)
Ответ на сообщение Re: Помогите сочинить навес пользователя Nemoj
Ответ на сообщение Re: Помогите сочинить навес пользователя AntonGuk
Ответ на сообщение Re: Помогите сочинить навес пользователя Nemoj
Между средней и короткой стойкой виноградная шпалера. Скажем, с обеих сторон.Т.е. вы не против будете если там появиться крест из трубы или уголков? Если хотите фермы, то можете сделать с такими высотами как в варианте 5 они пройдут конечно, но помочь вам с их расчетом и расчетом их узлов я не смогу, это гораздо более трудоемко (у меня на данный момент нет столько свободного времени), чем подобрать прокатную балку. Не могли бы вы еще нарисовать вид сверху, что бы на нем был показан навес (стойки) стена дома, и контур крыльца или входа который у вас нарисован в 5 варианте и все эти существующие конструкции привязать к какой нибудь стойке навеса?
Так что, фермы мои не пойдут? Швеллером перекрывать?
Исправлено пользователем AntonGuk (28.05.13 13:12)
Ответ на сообщение Помогите сочинить навес пользователя AntonGuk
Ок заглянул))Вы читаете только первые слова в сообщении ???
на остальные доводы внимания обращать не буду, спасибо за беседу и дальнейший диалог веду с авторами и адекватными людьми
не такими понятиями"20см снега весят примерно 120 кг/м2Вы так и не смог понять почему это утверждение верно и что таким образом можно обосновать сбор снеговой нагрузки?

Ответ на сообщение Re: Помогите сочинить навес пользователя КОЛО
Швеллер №14 - W=70.2 см3, Iy=491см4, труба 100х100х4 (гост 30245-2003)-W=45,02см3, I=225.1 см4, а теперь гений объясни мне недалекому, ну и всем остальным, как у тебя труба "сотая" с запасом, а 14 швеллер выбран в ноль (перегруз 1%) ??От профильных труб старайтесь отходитьВ прайс Деркула заглянуть - религия не позволила?
![]()
Из профильных труб конструкция еще и легче получится, т.к. я сотую трубу назначал с запасом, а 14 швеллер - выбран в ноль (перегруз 1%). А весят они одинаково.![]()
Ответ на сообщение Re: Помогите сочинить навес пользователя КОЛО
Вы так и не смог понять почему это утверждение верно и что таким образом можно обосновать сбор снеговой нагрузки?Я так понимаю ты от меня не отвяжетесь, вес снега в снипе дан на основе многолетних наблюдений, с какой то доверительной вероятностью, там не слова нет о зависимости его веса и толщины покрова, все решения, не соответствующие снип, нужно доказывать эксперту, либо они неверны, если тебе не трудно отсканируй свою переписку с экспертом, где ты это доказал, тогда соглашусь, а так я способы "сельских" проектировщиков не приму)))
Так расчширяй кругозор - попробуй понять каким образом в табличку СНиПа попало это 120 кг/м2 для ростовской области и 240 кг/м2 - для Новосибирской.
Глядишь и просветлишься...![]()
Исправлено пользователем AntonGuk (28.05.13 13:50)
Ответ на сообщение Re: Помогите сочинить навес пользователя Nemoj
Ответ на сообщение Re: Помогите сочинить навес пользователя AntonGuk
объясни мне недалекомуОбъясняю - Вы когда сечение подбирали читали что за проверка "критическая"?
.
.Ответ на сообщение Помогите сочинить навес пользователя AntonGuk
а так я способы "сельских" проектировщиков не приму)У тебя еще "принималка" не отросла
.
Ответ на сообщение Re: Помогите сочинить навес пользователя AntonGuk
и всем остальным, как у тебя труба "сотая" с запасом, а 14 швеллер выбран в ноль (перегруз 1%) ??Вот я как бы не конструктор, но по-моему очевидно, что при причих одинаковых сечениях/массах, труба держит более высокие продольные нагрузки на сжатие, чем швеллер. Сценарий деформации швеллера - изгиб с расхождением краев, а труба от этой деформации, грубо говоря, защищена еще одной стенкой.
Ответ на сообщение Re: Помогите сочинить навес пользователя КОЛО
шарнирным креплением балок покрытия к стене + развязывание покрытия горизонтальными связями + все узлы шарнирныеУ вас есть люк на чердак? - Вот тоже самое, только подперто колоннами.
Ответ на сообщение Re: Помогите сочинить навес пользователя КОЛО
[Даю наводку, чтобы мозги не лопнули - по прочности у швеллера 14 запас 55%.Озвучьте какую расчетную длину из плоскости вы брали? Наверное 4.8 метра?
Критическая проверка называется "устойчивость сжатого пояса балки из плоскости изгиба".
Остальное найдете и прочитаете в СНиП стальные конструкции..

Ответ на сообщение Re: Помогите сочинить навес пользователя КОЛО
Ок сделал скрин снипа нагрузки и воздействия, где здесь написано что 120 кг/м 2 соответствуют слою снежного покрова 20 см?а так я способы "сельских" проектировщиков не приму)У тебя еще "принималка" не отросла![]()
![]()
.
Это прописано в той самой табличке, в которой прописаны 120 и 240 кг/м2....![]()
Ответ на сообщение Re: Помогите сочинить навес пользователя euk
Вот я как бы не конструктор, но по-моему очевидно, что при причих одинаковых сечениях/массах, труба держит более высокие продольные нагрузки на сжатие, чем швеллер. Сценарий деформации швеллера - изгиб с расхождением краев, а труба от этой деформации, грубо говоря, защищена еще одной стенкой.речь идет не о сжимаемом элементе, а о изгибаемом, для изгиба принципиальна высота сечения, а не его ширина, остальные недостатки того или иного сечения решаются конструктивными способами (постановка ребер жесткости-что бы, как вы выразились края не расходились; постановкой связей по сжатым зонам балки что бы она не потеряла устойчивость при изгибе)
Ответ на сообщение Re: Помогите сочинить навес пользователя AntonGuk
где здесь написано что 120 кг/м 2 соответствуют слою снежного покрова 20 см?О майн гот.
.
.Ответ на сообщение Re: Помогите сочинить навес пользователя КОЛО
Ясно все с тобой проектируй по гуглу дальшегде здесь написано что 120 кг/м 2 соответствуют слою снежного покрова 20 см?О майн гот.![]()
.
Поясняю - шлешь запрос в Гугль и получаешь ответ, что максимальный вес снега - в период снеготаяния и составляет 600 кг/м3.
После чего делишь 120кг/м2 на 600 кг/м3 и получаешь 0,2 м или 20 см.
Потом вспоминаешь - каким же слоем в Ростове снег на кровле ложится в тех местах где m=1, сравниваешь с 20 см и делаешь выводы - соответствует или нет.
Я сравнивал для Новосибирска и сделал выводы - соответствует.
Эксперт же - достанет из тумбочки папочку с данными от местных метеорологов, посмотрит туда и ... согласится, т.к. там будет либо 600 кг/м3, либо меньше.
Переписку с экспертом не выложишь?Исправлено пользователем AntonGuk (28.05.13 16:10)
Ответ на сообщение Re: Помогите сочинить навес пользователя AntonGuk
Наверное 4.8 метра?Я - 4,8 м брал.

Ответ на сообщение Помогите сочинить навес пользователя AntonGuk
Переписку с экспертом не выложишь?

Ответ на сообщение Re: Помогите сочинить навес пользователя КОЛО
Ответ на сообщение Re: Помогите сочинить навес пользователя КОЛО
Ты каждый раз когда делаешь проект навеса шлешь запрос в росгидромет?Переписку с экспертом не выложишь?![]()
А мозгой пошевелить - лень тебе?
Шли запрос в Росгидромет - получишь ответ официальный.![]()

Исправлено пользователем AntonGuk (28.05.13 16:19)
Ответ на сообщение Re: Помогите сочинить навес пользователя AntonGuk
я писал про расчетную длину ИЗ ПЛОСКОСТИ изгибаИ я - про неё же писал

Ответ на сообщение Re: Помогите сочинить навес пользователя КОЛО

Ответ на сообщение Помогите сочинить навес пользователя AntonGuk
Ты каждый раз когда делаешь проект навеса шлешь запрос в росгидромет?Нет. Не шлю каждый раз.

Ответ на сообщение Re: Помогите сочинить навес пользователя КОЛО
Ок давай с другой стороны ты утверждаешь что в ростове на дону, расчетный снег равный 120 кг/м2 лежит толщиной 20 см я правильно понял? И уже от этих 20 см можно путем масштабирования вычислять распределение снеговых нагрузок?Ты каждый раз когда делаешь проект навеса шлешь запрос в росгидромет?Нет. Не шлю каждый раз.
Не требуют от меня эксперты таких данных, т.к. они у них есть и без меня.
Вы вот - требуете зачемто, а эксперты - читали эту сводку много раз и помнят её наизусть....
Поэтому и послан Вы был в Росгидромет - к первоисточнику этих данных ...![]()
Ответ на сообщение Re: Помогите сочинить навес пользователя AntonGuk
Ок давай с другой стороны ты утверждаешь что в ростове на дону, расчетный снег равный 120 кг/м2 лежит толщиной 20 см я правильно понял?Давай с другой.
.Ответ на сообщение Помогите сочинить навес пользователя AntonGuk
Ответ на сообщение Re: Помогите сочинить навес пользователя КОЛО
Ответ на сообщение Re: Помогите сочинить навес пользователя Nemoj
Ответ на сообщение Re: Помогите сочинить навес пользователя AntonGuk
А связи по сжатому поясу балокНа Вашей схеме сжатый пояс швеллеров 14 НЕ РАЗВЯЗАН.
.Ответ на сообщение Re: Помогите сочинить навес пользователя КОЛО
Ответ на сообщение Re: Помогите сочинить навес пользователя AntonGuk
Ответ на сообщение Re: Помогите сочинить навес пользователя AntonGuk
тогда вопрос зачем это все делать если в снипе есть и значение снега на ровной поверхности земли и схемы распределенияЗатем, чтобы люди незнакомсые со СНиПом могли себе "визуально" представить величину этой самой "повышенной" нагрузки.
.Исправлено пользователем КОЛО (28.05.13 17:32)
Ответ на сообщение Re: Помогите сочинить навес пользователя Nemoj
Я не против крестов.Такой вариант, СВ1 и СВ2 выполнить из трубы 40х3, СГ1 из гладкой арматуры или полосовой стали, приваренные к нижней части второстепенных балок, второстепенные балки из труб приваривается к 14 швеллеру через столики из уголка. Если утверждаешь такой каркас можно будет уже конкретно просчитать сечения и накидать узлы. Узнай по какой цене у вас прокат продается-что выгоднее использовать
План
Ответ на сообщение Помогите сочинить навес пользователя КОЛО
Я не пойму ваш метод определяет что? вес снега или рапределение снеговых отложений на кровле? Вот гляньте в ГОСТ 16350-80, таблицу 22. Там в ростове плотность снега указана 0.22г/см3 и максимальная высота покрова 44 см, как тогда быть с вашим способом неискушенному человеку?тогда вопрос зачем это все делать если в снипе есть и значение снега на ровной поверхности земли и схемы распределенияЗатем, чтобы люди незнакомсые со СНиПом могли себе "визуально" представить величину этой самой "повышенной" нагрузки.
Затем, что это простой метод и им можно пользоваться наравне со СНиПом.
Ну и еще затем, чтобы "коня" не сосчитать в итоге.....
Исправлено пользователем AntonGuk (28.05.13 18:19)
Ответ на сообщение Re: Помогите сочинить навес пользователя AntonGuk
Ответ на сообщение Помогите сочинить навес пользователя AntonGuk
как быть с вашим способом неискушенному человеку?Для начала понять - что же за звери такие "средняя плотность" и "декадная высота" снежного покрова
.Ответ на сообщение Re: Помогите сочинить навес пользователя Nemoj
Ответ на сообщение Re: Помогите сочинить навес пользователя КОЛО
Станет ясно - что к нашему случаю эти данные никак не прикрутить.Хотя не - можно прикрутить.

Ответ на сообщение Re: Помогите сочинить навес пользователя Nemoj
Кресты вдоль стены не пойдут. Лишний слоб в этом месте не встанет. Там проходит труба канализации. Количество столбов 6. И их место определено жестко.Ок, рисуйте тогда крылечко вид спереди, форму кровли и высоты, будем портальную связь пробовать вставить
Ответ на сообщение Re: Помогите сочинить навес пользователя AntonGuk
Ответ на сообщение Re: Помогите сочинить навес пользователя Nemoj
Ответ на сообщение Re: Помогите сочинить навес пользователя AntonGuk
Ответ на сообщение Re: Помогите сочинить навес пользователя Nemoj
Ответ на сообщение Re: Помогите сочинить навес пользователя Nemoj
Прогоны из профильной трубы длиной 4,8 с шагом 0,75Не применял такой лист на кровле не разу, мне кажется что это тоже самое что и С21 по госту, врятли он такой шаг потянет
Ответ на сообщение Re: Помогите сочинить навес пользователя AntonGuk
Ответ на сообщение Re: Помогите сочинить навес пользователя Nemoj
Ответ на сообщение Re: Помогите сочинить навес пользователя Nemoj
Исправлено пользователем AntonGuk (29.05.13 15:28)
Ответ на сообщение Помогите сочинить навес пользователя AntonGuk
Ответ на сообщение Re: Помогите сочинить навес пользователя Nemoj
Ответ на сообщение Re: Помогите сочинить навес пользователя AntonGuk
Ответ на сообщение Re: Помогите сочинить навес пользователя Nemoj
Настил берем нс35. Такой потянет?Возьмите Н60 широкими полками вниз - это позволит обойтись совсем без прогонов и без стропил.
Исправлено пользователем КОЛО (29.05.13 23:47)
Ответ на сообщение Помогите сочинить навес пользователя КОЛО
Ответ на сообщение Re: Помогите сочинить навес пользователя Nemoj
Ответ на сообщение Re: Помогите сочинить навес пользователя AntonGuk
Ответ на сообщение Re: Помогите сочинить навес пользователя Nemoj
Ответ на сообщение Re: Помогите сочинить навес пользователя AntonGuk
Ответ на сообщение Re: Помогите сочинить навес пользователя AntonGuk
для крепления по балкам нужно будет сделать какую то накладку под углом скатаЛегче повернуть ригели рам.
Ответ на сообщение Re: Помогите сочинить навес пользователя КОЛО
....вперёд за цыганской звездой кочевой...
Ответ на сообщение Re: Помогите сочинить навес пользователя cortes
Ответ на сообщение Re: Помогите сочинить навес пользователя КОЛО
....вперёд за цыганской звездой кочевой...
Ответ на сообщение Re: Помогите сочинить навес пользователя cortes
....вперёд за цыганской звездой кочевой...
Ответ на сообщение Re: Помогите сочинить навес пользователя cortes
Ответ на сообщение Re: Помогите сочинить навес пользователя cortes
что он даёт?то что он дает заложено в его названии, он нужен для удаления влаги из утеплителя, при утеплении между стропил
Ответ на сообщение Re: Помогите сочинить навес пользователя Nemoj
Ответ на сообщение Re: Помогите сочинить навес пользователя Nemoj
Ответ на сообщение Re: Помогите сочинить навес пользователя КОЛО
Ответ на сообщение Re: Помогите сочинить навес пользователя Nemoj
Ответ на сообщение Re: Помогите сочинить навес пользователя A2L
Не горюй !
Ответ на сообщение Re: Помогите сочинить навес пользователя Nemoj
Я тут узнал наконец секретную формулуУау, недельку отсутствовал, а аж 53 новых сообщения в теме.
I = 5/384 *ql^4/Ef
Применил ее к своим пролетам. У меня получилось, что прогоны подойдут 30х30х2, стропила 60х30х2, ригели швеллер 14.
Стойки проходят 80х80х3.
Правдоподобно?
Ответ на сообщение Re: Помогите сочинить навес пользователя AntonGuk
Ответ на сообщение Re: Помогите сочинить навес пользователя Дровосек
Ответ на сообщение Re: Помогите сочинить навес пользователя Nemoj
Ответ на сообщение Re: Помогите сочинить навес пользователя Дровосек
Ответ на сообщение Re: Помогите сочинить навес пользователя Nemoj
Ответ на сообщение Re: Помогите сочинить навес пользователя Nemoj
По какой формуле можно высчитать мои столбы?Наверное по СНиП II-23-81*, пункт 5.24*
Ответ на сообщение Re: Помогите сочинить навес пользователя Nemoj

Ответ на сообщение Re: Помогите сочинить навес пользователя Дровосек
Ответ на сообщение Re: Помогите сочинить навес пользователя Nemoj

Ответ на сообщение Re: Помогите сочинить навес пользователя Дровосек
Исправлено пользователем AntonGuk (05.06.13 10:31)
Ответ на сообщение Re: Помогите сочинить навес пользователя Nemoj
Ответ на сообщение Помогите сочинить навес пользователя AntonGuk
, в таком полном виде впервые встречаю.Ответ на сообщение Re: Помогите сочинить навес пользователя Дровосек

Ответ на сообщение Re: Помогите сочинить навес пользователя voluenko
Ответ на сообщение Re: Помогите сочинить навес пользователя voluenko
Доброго времени суток всем форумчанам!Где рисунок-то ???
Обсуждение захватило аж УХ
Постараюсь как-либо отрисовать тот навес, что собираюсь построить и вынести на Ваш суд.
Интересно будет выслушать ваше мнение.
Вопрос: можно ли вставить рисунок в формате *.cdr?
Не горюй !