(Полки для инструментов, перекуры, постоянно открытый воздух с улицы летом и прохладное место зимой)
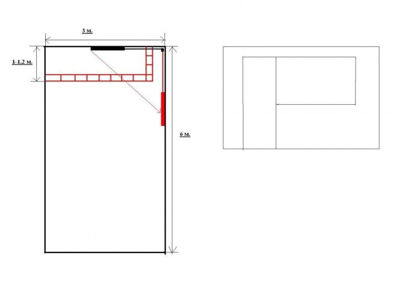
Придумали вот такую штуку пожертвовать 1-1,5 м комнаты (это будущая спальня), т.к. длина позволяет, и выложить стену из пеноблоков или подобного материала. Вставить балконный блок (как вариант французское окно до пола), а в оконный проем на улицу раздвижной стеклопакет. Батарея от стояка в углу переносится на стену , ну или на комнатную часть балкончика.
Проем балконного блока будет шире уличного окна, поэтому потери света вроде как существенно не должно быть. Со стороны комнаты обычные шторы, закрывающие один угол, где стояк батареи.
Знаем что так нельзя без разрешений, но предугадывая будущие проблемы есть такие мысли...
1.) Продажа и БТИ - ближайшие годы квартиру продавать не собираемся, а в случае чего эту стену можно просто разобрать, и вернуть батарею на место.
2.) Опасения о промерзании стены у соседей снизу - по сути у нас получается застекленный ,утепленный балкон, на котором снег лежать не будет, Дом новостройка - в половине квартир вообще батареи не подключены - стоят холодные квартиры.
3.) Вес конструкции - не тяжелее всей мебели в комнате, да и выбор материалов на рынке позволяет...
Теперь вопрос - что не предусмотрели, какие проблемы и загвоздки могут быть (помимо тех что описаны). Ну и очень интересны советы дизайнеров - как это можно обустроить поинтересней...




) поменять на квартиру с балконом?
деятели одним словом....