Погода: −21 °C
08.12−26...−22облачно, без осадков
09.12−31...−25переменная облачность, без осадков
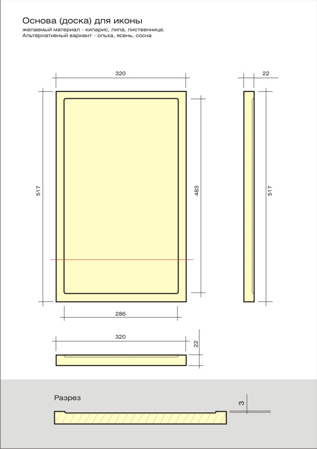
  • Ребята, кто имеет отношение к работе с деревом... Для написания икон мне нужны основы (доски) определеннах размеров и из определенных видов древесины - хотелось бы узнать сколько будет стоить изготовить подобное "изделие"... и где. Это должна быть доска из определенного вида материала - в идеале это кипарис, липа или лиственница. Но возможны варианты из ольхи, ясеня и сосны. Доска должна быть определенного размера с выбранным ковчегом (углублением 2-4мм) в центре. На чертеже я попытался всё это изобразить. Наиболее важное условие - доска должна быть сухая, БЕЗ СУЧКОВ и БЕЗ ЧЕРВОТОЧИНЫ. Никак особо её обрабатывать не нужно - всю последующую обработку я выполню сам. В приложении один вариант размера. Спасибо заранее. Жду ответа (совета).

  • а сколько нужно всего штук и в какой срок

  • пока нужна одна (такого размера, как в прикрепленном файле). Со сроками терпит - как вам будет удобно.

  • бортик 3мм можно доклеить или обязательно выфрезеровывать , если фрезеровать, то внутри шлифовка получится не важная ,если доклеить ,то будет отлично

  • с сосны -350р. с ясеня-780р . с липы-600р. с лиственницы- 500р. кипариса нет . пишите в личку

    Исправлено пользователем svois (02.06.09 22:30)

  • написал в личку

  • Написал вам в личку, а вы молчите... Передумали?

Записей на странице:

Перейти в форум

Модераторы: