Погода: −26 °C
10.12−27...−19ясная погода, без осадков
11.12−14...−13пасмурно, без осадков
НГС.Форум /Дом Стройка Ремонт / Строим дом /

планировка дома из сип-панелей.

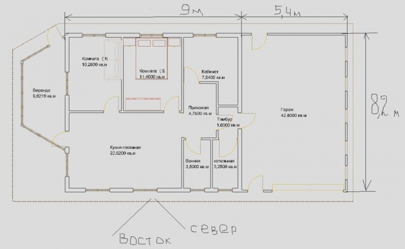
  • Покритикуйте, пожалуйста, планировку дома для ПМЖ для двоих человекВо вложении примерный план одноэтажного дома размерами 9*8.2. Рассчитывал на панели перекрытий (пол, чердак) 1250*3000*224 , в длину- 3 панели и в ширину- 6,5 панелей. Стеновые панели -1250*2500*174, Фундамент МЗФ (армированная лента с двумя перемычками через 3 метра) Чердак холодный. Внутренние стены можно каркасные или из панелей 1250*2500*124. Участок 40 соток. На участке старый дом, который нужно "заменить" новым. До дороги 10 метров.

    Исправлено пользователем Тарас_ка (21.05.09 11:47)

  • Из веранды вход сразу на кухню? И гараж великоват, если он не на 2 автомобиля.

    Солнце не знает правых. Солнце не знает неправых. Солнце светит без цели кого-то согреть. Нашедший себя подобен солнцу.

  • гараж великоват и вход в дом через гараж не удобно

    ART DE VIVRE

  • Я бы под котельную часть гаража выделил, а не жилые площади.

    Исправлено пользователем demetrodon (21.05.09 14:21)

  • Зачем из комнаты (1) окно на веранду? Зачем прихожая перед кабинетом? А туалета в доме не будет? или он вместе с ванной будет?

    А вот и не угадали.....

  • мои пять копеек:улыб:из опыта проживания в загородном доме:
    1. зачем СТРОЛЬКО входов в дом? будете держать их на замке всегда? это нереально... будете дергаться что кто-то зашел а вы не видите? это некомфортно...
    2. комната 1 - окно на веранду? все равно что проходная комната: все время кто-то ходит мимо:улыб:3. на прямой (на сквозняке) находятся двери веранда-гараж, значит будет постоянный сквозняк и потянет ВСЕ из гаража;
    4. с веранды нет прихожей, где зимой раздеваться/разуваться будете? и, всегда ли, комфортно через гараж входить?
    воть:улыб:
    пока с мыслями собиралась уже опередили
    согласно полностью
    -туалет?
    -кабинет у гаража?
    -прихожая?

    Исправлено пользователем allinna (21.05.09 15:56)

  • Большое спасибо всем за замечания по планировке! Хочу внести некоторые уточнения:

    1. гаража как такового у меня не будет, будет крытый двор( светлый за счёт большой площади остекления правой стены) , не капитальные стены ( типа навеса). Почему?.... До дороги итак снег надо будет чистить метров 10, да если ещё во дворе чистить и отдельно дорожку для себя и дорогу для машины. Считаю, что строить отдельный дом для железяки большая роскошь. У соседа крытый двор и гараж, так он гараж использует как кладовку для всякого барахла, а машину ставит во дворе.
    2. Вход из сада на веранду будет использоваться только летом, а на зиму закрываться.(зимой выход из веранды не планируется)
    3. Зачем из комнаты (1) окно на веранду?.. Хочется, чтобы комната была очень светлая весь день, потому что жена часто шьёт и свет ей очень не помешает. Те кто занимается таким видом рукоделия меня поймут….Ходить перед окном особо- то и некому.
    4. Ванная…Я неправильно назвал. Там будет душевая кабинка , раковина, унитаз.
    5. Кабинет- тоже неправильное название. Это может быть кладовая, подсобная и.т.п..

Записей на странице:

Перейти в форум

Модераторы: